Datenblatt

8/10
Siemens Durchgangs- und Dreiwegventile PN 16 CE1N4845de
Building Technologies 2018-11-05
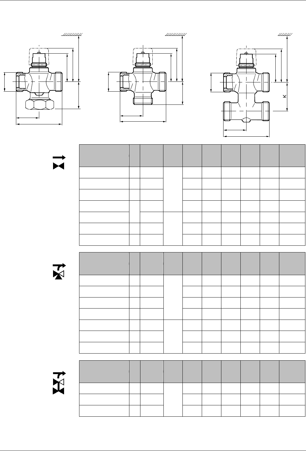
Massbilder
Durchgangsventile
VVP45..
Dreiwegventile
VXP45..
Dreiwegventile mit T-Bypass
VMP45..
H1
H2
H
L2
L1
4845M01
L4
G
H1
H2
H
L3
L2
L1
4845M02
G
G
L2
L1
H1
H2
H
4845M03
A
AB
Ventiltyp DN G H H1 H2 L1 L2 L4 Gewicht
[Zoll] [mm] [mm] [mm] [mm] [mm] [mm] [kg]
VVP45.10-0.25…1.6
10 G ½B
> 200
44,9 ≈ 54 60 30 20 0,26
VVP45.15-2.5
15 G ¾B 44,9 ≈ 54 65 32,5 20 0,30
VVP45.20-4
20 G 1B 48,9 ≈ 58 80 40 24 0,42
VVP45.25-6.3
25
G 1¼B 51 ≈ 60 80 40 49 0,76
VVP45.25-10
G 1½B
> 280
62,5 ≈ 71 105 52,5 62,5 1,40
VVP45.32-16
32 G 2B 69 ≈ 78 105 52,5 63,5 1,95
VVP45.40-25
40 G 2¼B 72 ≈ 81 130 65 76 2,75
A
AB
B
Ventiltyp DN G H H1 H2 L1 L2 L3 Gewicht
[Zoll] [mm] [mm] [mm] [mm] [mm] [mm] [kg]
VXP45.10-0.25…1.6
10 G ½B
> 200
44,9 ≈ 54 60 30 30 0,28
VXP45.15-2.5
15 G ¾B 44,9 ≈ 54 65 32,5 32,5 0,34
VXP45.20-4
20 G 1B 48,9 ≈ 58 80 40 40 0,48
VXP45.25-6.3
25 G 1¼B 51 ≈ 60 80 40 40 0,64
VXP45.25-10
25 G 1½B
> 280
62,5 ≈ 81 105 52,5 52,5 1,20
VXP45.32-16
32 G 2B 69 ≈ 88 105 52,5 52,5 1,60
VXP45.40-25
40 G 2¼B 72 ≈ 91 130 65 65 2,30
A
AB
B
Ventiltyp DN G H H1 H2 K L1 L2 Gewicht
[Zoll] [mm] [mm] [mm] [mm] [mm] [mm] [kg]
VMP45.10-0.25…1.6
10 G ½B
> 200
44,9 ≈ 54 40 60 30 0,36
VMP45.15-2.5
15 G ¾B 44,9 ≈ 54 40 65 32,5 0,46
VMP45.20-4
20 G 1B 48,9 ≈ 58 50 80 40 0,64










