Basisdokumentation
Table Of Contents
- 1 Übersicht
- 2 Bedienung
- 3 Inbetriebnahme
- 4 Allgemeine Einstellungen
- 5 Allgemeine Funktionen, Grundlagen
- 6 Kesselregelung
- 6.1 Funktionsblock-Übersicht
- 6.2 Konfiguration
- 6.3 Kesselbetriebsarten und Kesselsollwerte
- 6.4 Freigeben und Sperren eines Kessels
- 6.5 Testbetrieb und Inbetriebnahmehilfen
- 6.6 Kesselschutzfunktionen
- 6.6.1 Maximalbegrenzung der Kesseltemperatur
- 6.6.2 Minimalbegrenzung der Kesseltemperatur
- 6.6.3 Optimierung Kesselminimaltemperatur
- 6.6.4 Kesselüberhitzungsschutz
- 6.6.5 Pumpenkick und Ventilkick
- 6.6.6 Frostschutz (Freigabe-Eing. Aus)
- 6.6.7 Anlagenfrostschutz Kesselpumpe
- 6.6.8 Kesselanfahrentlastung
- 6.6.9 Kesselabschaltung
- 6.6.10 Kesselfrostschutz
- 6.6.11 Rücklaufhochhaltung
- 6.6.12 Schutz vor Druckschlägen
- 6.7 Abgastemperaturüberwachung
- 6.8 Abgasmessbetrieb
- 6.9 Kesselstörung
- 6.10 Brennerbetriebsstunden-Zähler und Brennerstart-Zähler
- 6.11 Störungsbehandlung
- 6.12 Textbezeichnung für Kessel
- 6.13 Diagnosemöglichkeiten
- 7 Wärmebedarf und Wärmeanforderungen
- 8 Hauptregler und Vorregler
- 9 Heikreisregelung
- 9.1 Funktionsblock-Übersicht
- 9.2 Konfiguration
- 9.3 Betriebsarten im Heizkreis
- 9.4 Raumtemperatursollwerte
- 9.5 Witterungsgeführte Heizkreisregelung
- 9.6 Mischerregelung
- 9.7 Optimierungsfunktionen
- 9.8 Begrenzungs- und Schutzfunktionen
- 9.9 Wärmebedarf
- 9.10 Zusatzfunktionen
- 9.11 Störungsbehandlung
- 9.12 Diagnosemöglichkeiten
- 10 Brauchwasserbereitung
- 10.1 Funktionsblock-Übersicht
- 10.2 Konfiguration
- 10.3 Betriebsarten und Sollwerte
- 10.4 Speicherladung
- 10.5 Direkte Brauchwasserbereitung
- 10.6 Legionellenschutz
- 10.7 Primärregelung
- 10.8 Begrenzungs- und Schutzfunktionen
- 10.9 Wärmebedarf
- 10.10 Brauchwasservorrang
- 10.11 Zusatzfunktionen
- 10.12 Störungsbehandlung
- 10.13 Diagnosewerte
- 11 Logikfunktionen
- 11.1 Logik
- 11.1.1 Aktivieren der Logik
- 11.1.2 Zuordnung von Texten
- 11.1.3 Einstellwerte Schaltwert Ein und Aus
- 11.1.4 Einschaltverzögerung / Ausschaltverzögerung
- 11.1.5 Minimale Einschaltdauer
- 11.1.6 Minimale Ausschaltdauer
- 11.1.7 Betriebsschalter
- 11.1.8 Verdrahtungstest
- 11.1.9 Prioritäten
- 11.1.10 Hinweise
- 11.1.11 Anwendungsbeispiel Speicherladung
- 11.1.12 Anwendungsbeispiel RS-Flip Flop
- 11.1.13 Anwendungsbeispiel solare Brauchwasserbereitung
- 11.2 Komparator
- 11.2.1 Aktivieren des Komparators
- 11.2.2 Zuordnung von Texten
- 11.2.3 Grenzwert oben und Grenzwert unten
- 11.2.4 Einschaltverzögerung / Ausschaltverzögerung
- 11.2.5 Minimale Einschaltdauer
- 11.2.6 Minimale Ausschaltdauer
- 11.2.7 Anzeigewerte
- 11.2.8 Verdrahtungstest
- 11.2.9 Prioritäten
- 11.2.10 Fehlerbehandlung
- 11.2.11 Anwendungsbeispiel solare Brauchwasserbereitung
- 11.1 Logik
- 12 Funktionsblock Zähler
- 13 Funktionsblock Diverses
- 14 Funktionsblock Störungen
- 14.1 Funktionsblock-Übersicht
- 14.2 Konfiguration
- 14.3 Störungstaste
- 14.4 Störungstaste extern
- 14.5 Störungseigenschaften
- 14.6 Zustandsdiagramme der einzelnen Störungsarten
- 14.7 Vordefinierte Störungseingänge
- 14.8 Störungseingänge
- 14.9 Kommunikation
- 14.10 Störungsrelais
- 14.11 Störungsanzeige
- 14.12 Löschen aller Störungsmeldungen
- 14.13 Diagnosemöglichkeiten
- 15 Kommunikation
- 16 Hilfestellung bei Störungssuche
- 17 Anhang
- Stichwortverzeichnis

28/256
Siemens Modularer Heizungsregler RMH760B CE1P3133de
Building Technologies 3 Inbetriebnahme 2017-09-29
3.2.3 Kurzbezeichnungen für Grundmodul und
Erweiterungsmodule
Nachfolgend werden die folgenden Kurzbezeichnungen verwendet:
Kurzbezeichnung
Modul
N
Grundmodul RMH760B
A2
Erweiterungsmodul RMZ782B
A2(1)
Erstes von zwei Erweiterungsmodulen RMZ782B
A2(2)
Zweites von zwei Erweiterungsmodulen RMZ782B
A3
Erweiterungsmodul RMZ783B
A7
Erweiterungsmodul RMZ787
A9
Erweiterungsmodul RMZ789
A9(1)
Erstes Erweiterungsmodul RMZ789
A9(2)
Zweites Erweiterungsmodul RMZ789
Diese Bezeichnungen werden auch auf dem Bediengerät angezeigt.
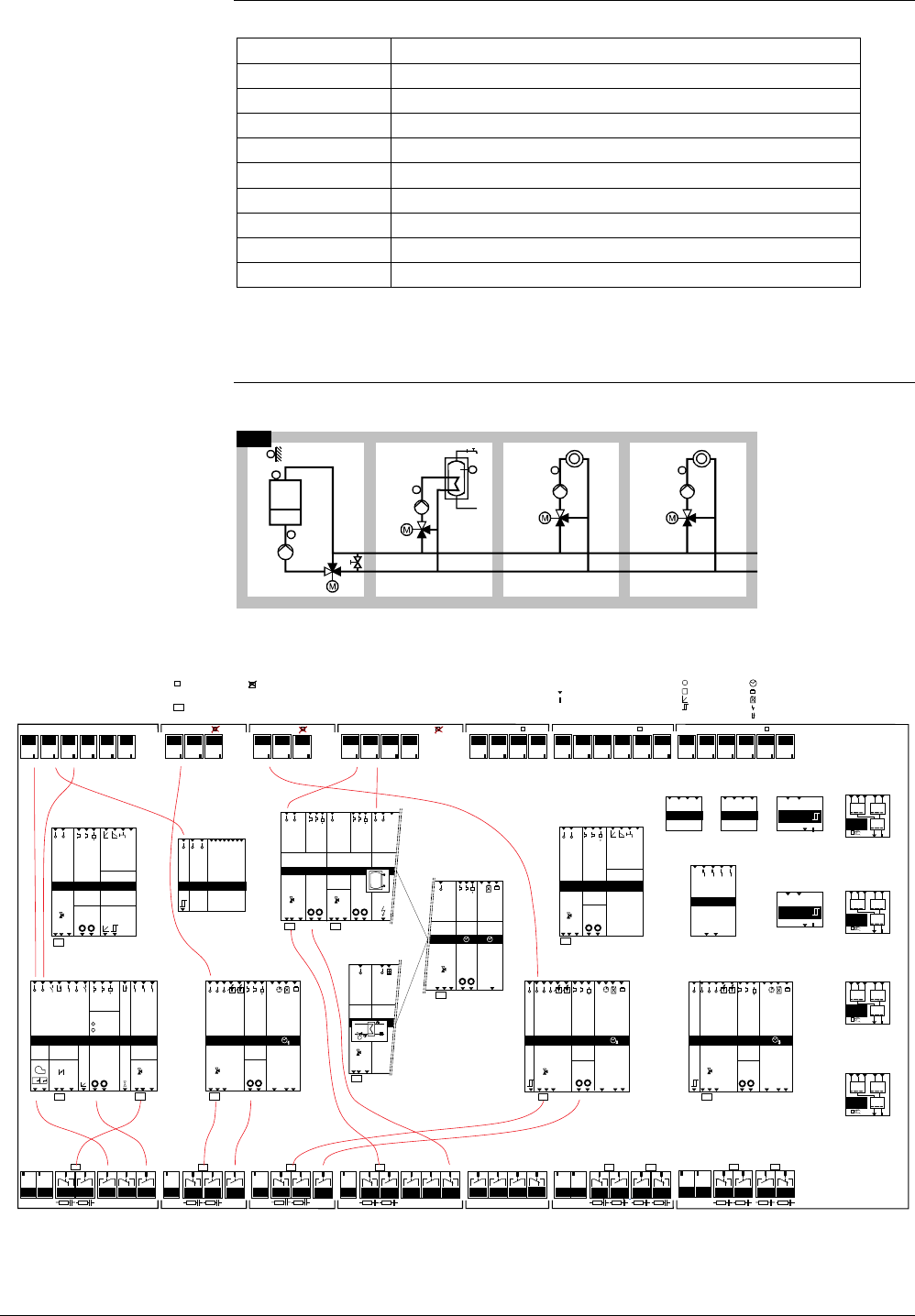
3.2.4 Anwendung der Konfigurationsschemen
Die Anwendung der Konfigurationsschemen wird anhand des Anlagentyps H4-5 erläutert.
H4-5
A3N1
3133S35
A3.X2
A3.Q1/Q2
A3.Q5
A3.X1
N.X2
N.X1
N.Q3
N.X3
N.Q5
N.Q1/Q2
A2(2)A2(1)
A2.X1
A2.Q3
A2.Q1/Q2
A2.X1
A2.Q3
A2.Q1/Q2
Konfigurationsschema für Anlagentyp H4-5
a a a a d da
Q Q
x x
1
2
x x
3
4
0...10 V
Y Q
d
d
B
d
B
V
Q
2
)
1
)
3
P
R1
Q
R2
Q
d
d d
Q
Y Q
a a a a d da
Q
0...10 V
Y Q
d
d
B
d
B
V
Q
2
)
1
)
3
P
a
R1
Q
R2
Q
d d
Q
a a a a d da
Q
0..
.10 V
Y Q
d
d
B
d
B
V
Q
2
)
1
)
3
P
a
R1
Q
R2
Q
d d
Q
RMH76 0
N.X5
x
N.X6
x
N.X4
x
N.X3
x
N.X2
x
N.X1
x
A7.X3
x
A7.X4
x
A7.X2
x
A7.X1
x
RMZ789 (2)
A9.X6
x
A9.X5
x
A9.X3
x
A9.X4
x
A9.X2
x
A9.X1
x
RMZ789 (1)
( )
A2.X3
x
A2.X2
x
A2.X1
x
A2.X3
x
A2.X2
x
A2.X1
x
A3.X3
x
A3.X4
x
A3.X2
x
A3.X1
x
RMZ782 (2) RMZ783 RMZ787
A9.X6
x
A9.X5
x
A9.X3
x
A9.X4
x
A9.X2
x
A9.X1
x
a d d d
Q
d d
B
d
B
V
Q
1
)
DC 0...10 V
a
0...10 V
Y
a
2
)
3
P
a d d d
Q
d d
B
d
B
V
Q
1
)
DC
0
.
..
1
0
V
a
0...10 V
Y
a
2
)
3
P
i i i i
1
2
3
4
1. 2.
da da ddd
Q Q Q
d
Q
d
B
d
B
V
Q
a
0...10 V
Y
0...10 V
Y
2
)
2
)
1
)
3
P
3
P
Y
d d d
a xa
Q
a
a d
0...10 V
Y
2
)
3
P
N.Y1
Y
N.Q 4
Q
N.Q 1
Q
N.Q 2
Q
N.Q 3
Q
N.Q 5
Q
A9.Q2
Q
A9.Q3
Q
A9.Q4
Q
A9.Q1
Q
A7.Q1
Q
A7.Q2
Q
A7.Q3
Q Q
A7.Q5
N1 N2 N1 N2 N3 N4
N.Y2
Y
A9.Y1
Y
A9.Y2
Y
A9.Q2
Q
A9.Q3
Q
A9.Q4
Q
A9.Q1
Q
N1 N2 N3 N4
A9.Y1
Y
A9.Y2
Y
3
P
3
P
3
P
3
P
3
P
A2.Q2
Q
A2.Q3
Q
N1 N2
A2.Y1
Y
3
P
A2.Q2
Q
A2.Q3
Q
N1 N2
A2.Y1
Y
3
P
A3.Q2
Q
A3.Q3
Q
A3.Q5
Q
N1 N2
A3.Y1
Y
3
P
A3.Q4
Q
3
P
RMZ782 (1)
V
a a a da ad dd
Q
Y
3
P
Q QY
3
P
Q Q
V
d d
B
d
0...10 V
2
)
B
0...10 V
2
)
1
)
B
1
)
B
V
dd d
B
d
a
Q Q
B
0. ..10 V
Y
2
)
3
P
Q
dd
1
)
a
A2.Q1
Q
A2.Q1
Q
A3.Q1
Q
1 2 21
x x x x
A B
3
x
Q
d
C
1 2 21
x x x x
A
B
3
x
Q
d
C
1 2 21
x x x x
A B
3
x
Q
d
C
1 2 21
x x x x
A
B
3
x
Q
d
C
Q
a a
d
A - B
Q
a a
d
A - B
x x xxx x x
..
.
...
X
1
2
3
4
X X X
Vorlauf
Rücklauf
Raum
Raum rel.
Timer
R
aum
ab
s.
Be
tri
ebs
art
zu
auf
Relais 1
Relais 2
Störungen
Heizkreis 1
Heizkreis-
pum pe
Stör'taste
Hei
zgre
nz e
Heizk
ennlini
e
Wärmebedarf
Betriebsart
A
us
s
en
Vorlauf
Rücklauf
Raum
Raum rel.
Raum abs.
Betriebsart
Timer
auf
zu
Heizkreis-
pum pe
Heizgrenze
Betriebsart
Vorlauf
Rücklauf
Raum
Raum rel.
Raum abs.
Aussen
Betriebsart
Timer
zu
auf
Heizgrenze
Betriebsart
Heizkreis-
pum pe
Heizkreis 3Heizkreis 2
X = Universeller Eingang
Y = A naloger A usgang
Q = Relais-Ausgang
x = analog oder digital
a = analog
d = digital
i = impuls
= von hier
= nach da = St etiger Ausgang
= Störung
= Rückmeldung
= Schaltuhr
= Ferien
= Sondertag
= 2-Punkt Aus gang
Konfiguration vornehmen:
Von Gross-Buchst abe nach Gross-Buchst abe
Von klein-Buchst abe nach klein-Buchstabe
Gross-Buchstabe = Physikalischer Ein- oder Ausgang
Klein-Buchstabe = Internes Signal
= Oder-Auswahl
= Und-Auswahl
Haup treg l er
Wärmeanford
Frost
Vorlauf
R üc k lau f
zu
auf
Haupt-
pumpe
Diverses
Anzeige 1
Anzeige 8
Wind
Sonne
Aussen
Primär
Durchfluss
Vorlauf
Sekundär
zu
auf
Zähler
Ab gas
F
r
e
i
g
a
b
e
Ab gasmes s betr.
Brenner
Kessel
Rücklauf
Brenne r
Absperrklappe
Kesselp.
Byp a ssp.
(Wassermangel) 1
(Überdruck) 2
(Unterdruck) 3
Pumpenfkt:
Kessel
Modulierend
Stufe
zu
auf
Sollwertführung
zu
auf
Rücklauf-
Hochhalt.
Vorlauf
Rück l auf
Heizkennlinie
Frost
Vo rreg l er
W
ä
r
m
e
a
n
f
o
r
d
.
Z ubringer-
pum pe
zu
auf
4 Erweiterungsmodule
1) 6 Einzel- oder Zwillingspumpen
2) 6 Stellausgänge (DC 0.. .10 V oder 3-Punkt)
3-Punkt Ausgang paarweise Q1/Q2, Q3/Q4
Konfigurationsschema
RMH760B
Maximalkonfiguration:
Anlagentyp
Legionellen-
funktion-Relais
Primär
Vorlauf
Rückl auf
Vorlauf
Sekundär
Ver-
braucher
Zir ku-
lation
Speicher
Betriebsart
zu
auf
zu
auf
zu
auf
Hoch-
haltung
oben
unt en
Vorlauf
Zwangsladung
Rücklauf
BW
3133W01_H_de_a
Komparat or 2
Komparat or 1
Logik 1
Logik 2
Logik 3
Logik 4
Trend
H4-5
Anlagentyp H4-5