Basisdokumentation
Table Of Contents
- 1 Übersicht
- 2 Bedienung
- 3 Inbetriebnahme
- 4 Allgemeine Einstellungen
- 5 Allgemeine Funktionen, Grundlagen
- 6 Kesselregelung
- 6.1 Funktionsblock-Übersicht
- 6.2 Konfiguration
- 6.3 Kesselbetriebsarten und Kesselsollwerte
- 6.4 Freigeben und Sperren eines Kessels
- 6.5 Testbetrieb und Inbetriebnahmehilfen
- 6.6 Kesselschutzfunktionen
- 6.6.1 Maximalbegrenzung der Kesseltemperatur
- 6.6.2 Minimalbegrenzung der Kesseltemperatur
- 6.6.3 Optimierung Kesselminimaltemperatur
- 6.6.4 Kesselüberhitzungsschutz
- 6.6.5 Pumpenkick und Ventilkick
- 6.6.6 Frostschutz (Freigabe-Eing. Aus)
- 6.6.7 Anlagenfrostschutz Kesselpumpe
- 6.6.8 Kesselanfahrentlastung
- 6.6.9 Kesselabschaltung
- 6.6.10 Kesselfrostschutz
- 6.6.11 Rücklaufhochhaltung
- 6.6.12 Schutz vor Druckschlägen
- 6.7 Abgastemperaturüberwachung
- 6.8 Abgasmessbetrieb
- 6.9 Kesselstörung
- 6.10 Brennerbetriebsstunden-Zähler und Brennerstart-Zähler
- 6.11 Störungsbehandlung
- 6.12 Textbezeichnung für Kessel
- 6.13 Diagnosemöglichkeiten
- 7 Wärmebedarf und Wärmeanforderungen
- 8 Hauptregler und Vorregler
- 9 Heikreisregelung
- 9.1 Funktionsblock-Übersicht
- 9.2 Konfiguration
- 9.3 Betriebsarten im Heizkreis
- 9.4 Raumtemperatursollwerte
- 9.5 Witterungsgeführte Heizkreisregelung
- 9.6 Mischerregelung
- 9.7 Optimierungsfunktionen
- 9.8 Begrenzungs- und Schutzfunktionen
- 9.9 Wärmebedarf
- 9.10 Zusatzfunktionen
- 9.11 Störungsbehandlung
- 9.12 Diagnosemöglichkeiten
- 10 Brauchwasserbereitung
- 10.1 Funktionsblock-Übersicht
- 10.2 Konfiguration
- 10.3 Betriebsarten und Sollwerte
- 10.4 Speicherladung
- 10.5 Direkte Brauchwasserbereitung
- 10.6 Legionellenschutz
- 10.7 Primärregelung
- 10.8 Begrenzungs- und Schutzfunktionen
- 10.9 Wärmebedarf
- 10.10 Brauchwasservorrang
- 10.11 Zusatzfunktionen
- 10.12 Störungsbehandlung
- 10.13 Diagnosewerte
- 11 Logikfunktionen
- 11.1 Logik
- 11.1.1 Aktivieren der Logik
- 11.1.2 Zuordnung von Texten
- 11.1.3 Einstellwerte Schaltwert Ein und Aus
- 11.1.4 Einschaltverzögerung / Ausschaltverzögerung
- 11.1.5 Minimale Einschaltdauer
- 11.1.6 Minimale Ausschaltdauer
- 11.1.7 Betriebsschalter
- 11.1.8 Verdrahtungstest
- 11.1.9 Prioritäten
- 11.1.10 Hinweise
- 11.1.11 Anwendungsbeispiel Speicherladung
- 11.1.12 Anwendungsbeispiel RS-Flip Flop
- 11.1.13 Anwendungsbeispiel solare Brauchwasserbereitung
- 11.2 Komparator
- 11.2.1 Aktivieren des Komparators
- 11.2.2 Zuordnung von Texten
- 11.2.3 Grenzwert oben und Grenzwert unten
- 11.2.4 Einschaltverzögerung / Ausschaltverzögerung
- 11.2.5 Minimale Einschaltdauer
- 11.2.6 Minimale Ausschaltdauer
- 11.2.7 Anzeigewerte
- 11.2.8 Verdrahtungstest
- 11.2.9 Prioritäten
- 11.2.10 Fehlerbehandlung
- 11.2.11 Anwendungsbeispiel solare Brauchwasserbereitung
- 11.1 Logik
- 12 Funktionsblock Zähler
- 13 Funktionsblock Diverses
- 14 Funktionsblock Störungen
- 14.1 Funktionsblock-Übersicht
- 14.2 Konfiguration
- 14.3 Störungstaste
- 14.4 Störungstaste extern
- 14.5 Störungseigenschaften
- 14.6 Zustandsdiagramme der einzelnen Störungsarten
- 14.7 Vordefinierte Störungseingänge
- 14.8 Störungseingänge
- 14.9 Kommunikation
- 14.10 Störungsrelais
- 14.11 Störungsanzeige
- 14.12 Löschen aller Störungsmeldungen
- 14.13 Diagnosemöglichkeiten
- 15 Kommunikation
- 16 Hilfestellung bei Störungssuche
- 17 Anhang
- Stichwortverzeichnis

226/256
Siemens Modularer Heizungsregler RMH760B CE1P3133de
Building Technologies 15 Kommunikation 2017-09-29
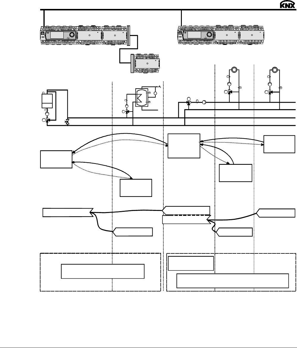
Die Wärmeverteilzone erzeugerseitig kann nur beim Betrieb mit Hauptregler ohne
Kessel eingestellt werden. Beim Betrieb mit Kessel wird diese nicht benötigt.
Die Wärmeverteilzone verbraucherseitig kann nur im Zusammenhang mit einem
Vorregler eingestellt werden.
In folgender Anlage sind Kessel und Brauchwasser im Regler 1 und Hauptregler und
Heizkreise im Regler 2. Die Pfeile zeigen den Fluss des Wärmebedarfs und der
Leistungssteuerung. Das Beispiel zeigt anschaulich, wie der Hauptregler die
Schnittstelle zwischen zwei Zonen übernimmt. Er empfängt die Wärmeanforderungen
und bildet einen resultierenden Wärmebedarf, den er an den Kessel weiterleitet.
In den gestrichelten Kästen Regler 1und Regler 2 sind die Zoneneinstellungen
dargestellt.
T
3133B01
T
T
T
T
T
T
3133B01
T
T
T
T
T
Wärme-
erzeuger
Wärme-
verbraucher
Wärme-
verbraucher
Wärme-
verbraucher
Wärme-
verbraucher/
Hauptregler
Regler 1
Regler 2
Wärmeanforderung
Wärmebedarf
Wärmebedarf
Wärmeanforderung
Wärmebedarf
Wärmebedarf
Wärmeverteilzone = 1
Wärmeverteilzone = 2
Wärmeverteilzone
erzeugerseitig = 1
Regler 1 Regler 2
Hinweis
Beispiel