Basisdokumentation
Table Of Contents
- 1 Übersicht
- 2 Bedienung
- 3 Inbetriebnahme
- 4 Allgemeine Einstellungen
- 5 Allgemeine Funktionen, Grundlagen
- 6 Kesselregelung
- 6.1 Funktionsblock-Übersicht
- 6.2 Konfiguration
- 6.3 Kesselbetriebsarten und Kesselsollwerte
- 6.4 Freigeben und Sperren eines Kessels
- 6.5 Testbetrieb und Inbetriebnahmehilfen
- 6.6 Kesselschutzfunktionen
- 6.6.1 Maximalbegrenzung der Kesseltemperatur
- 6.6.2 Minimalbegrenzung der Kesseltemperatur
- 6.6.3 Optimierung Kesselminimaltemperatur
- 6.6.4 Kesselüberhitzungsschutz
- 6.6.5 Pumpenkick und Ventilkick
- 6.6.6 Frostschutz (Freigabe-Eing. Aus)
- 6.6.7 Anlagenfrostschutz Kesselpumpe
- 6.6.8 Kesselanfahrentlastung
- 6.6.9 Kesselabschaltung
- 6.6.10 Kesselfrostschutz
- 6.6.11 Rücklaufhochhaltung
- 6.6.12 Schutz vor Druckschlägen
- 6.7 Abgastemperaturüberwachung
- 6.8 Abgasmessbetrieb
- 6.9 Kesselstörung
- 6.10 Brennerbetriebsstunden-Zähler und Brennerstart-Zähler
- 6.11 Störungsbehandlung
- 6.12 Textbezeichnung für Kessel
- 6.13 Diagnosemöglichkeiten
- 7 Wärmebedarf und Wärmeanforderungen
- 8 Hauptregler und Vorregler
- 9 Heikreisregelung
- 9.1 Funktionsblock-Übersicht
- 9.2 Konfiguration
- 9.3 Betriebsarten im Heizkreis
- 9.4 Raumtemperatursollwerte
- 9.5 Witterungsgeführte Heizkreisregelung
- 9.6 Mischerregelung
- 9.7 Optimierungsfunktionen
- 9.8 Begrenzungs- und Schutzfunktionen
- 9.9 Wärmebedarf
- 9.10 Zusatzfunktionen
- 9.11 Störungsbehandlung
- 9.12 Diagnosemöglichkeiten
- 10 Brauchwasserbereitung
- 10.1 Funktionsblock-Übersicht
- 10.2 Konfiguration
- 10.3 Betriebsarten und Sollwerte
- 10.4 Speicherladung
- 10.5 Direkte Brauchwasserbereitung
- 10.6 Legionellenschutz
- 10.7 Primärregelung
- 10.8 Begrenzungs- und Schutzfunktionen
- 10.9 Wärmebedarf
- 10.10 Brauchwasservorrang
- 10.11 Zusatzfunktionen
- 10.12 Störungsbehandlung
- 10.13 Diagnosewerte
- 11 Logikfunktionen
- 11.1 Logik
- 11.1.1 Aktivieren der Logik
- 11.1.2 Zuordnung von Texten
- 11.1.3 Einstellwerte Schaltwert Ein und Aus
- 11.1.4 Einschaltverzögerung / Ausschaltverzögerung
- 11.1.5 Minimale Einschaltdauer
- 11.1.6 Minimale Ausschaltdauer
- 11.1.7 Betriebsschalter
- 11.1.8 Verdrahtungstest
- 11.1.9 Prioritäten
- 11.1.10 Hinweise
- 11.1.11 Anwendungsbeispiel Speicherladung
- 11.1.12 Anwendungsbeispiel RS-Flip Flop
- 11.1.13 Anwendungsbeispiel solare Brauchwasserbereitung
- 11.2 Komparator
- 11.2.1 Aktivieren des Komparators
- 11.2.2 Zuordnung von Texten
- 11.2.3 Grenzwert oben und Grenzwert unten
- 11.2.4 Einschaltverzögerung / Ausschaltverzögerung
- 11.2.5 Minimale Einschaltdauer
- 11.2.6 Minimale Ausschaltdauer
- 11.2.7 Anzeigewerte
- 11.2.8 Verdrahtungstest
- 11.2.9 Prioritäten
- 11.2.10 Fehlerbehandlung
- 11.2.11 Anwendungsbeispiel solare Brauchwasserbereitung
- 11.1 Logik
- 12 Funktionsblock Zähler
- 13 Funktionsblock Diverses
- 14 Funktionsblock Störungen
- 14.1 Funktionsblock-Übersicht
- 14.2 Konfiguration
- 14.3 Störungstaste
- 14.4 Störungstaste extern
- 14.5 Störungseigenschaften
- 14.6 Zustandsdiagramme der einzelnen Störungsarten
- 14.7 Vordefinierte Störungseingänge
- 14.8 Störungseingänge
- 14.9 Kommunikation
- 14.10 Störungsrelais
- 14.11 Störungsanzeige
- 14.12 Löschen aller Störungsmeldungen
- 14.13 Diagnosemöglichkeiten
- 15 Kommunikation
- 16 Hilfestellung bei Störungssuche
- 17 Anhang
- Stichwortverzeichnis

146/256
Siemens Modularer Heizungsregler RMH760B CE1P3133de
Building Technologies 10 Brauchwasserbereitung 2017-09-29
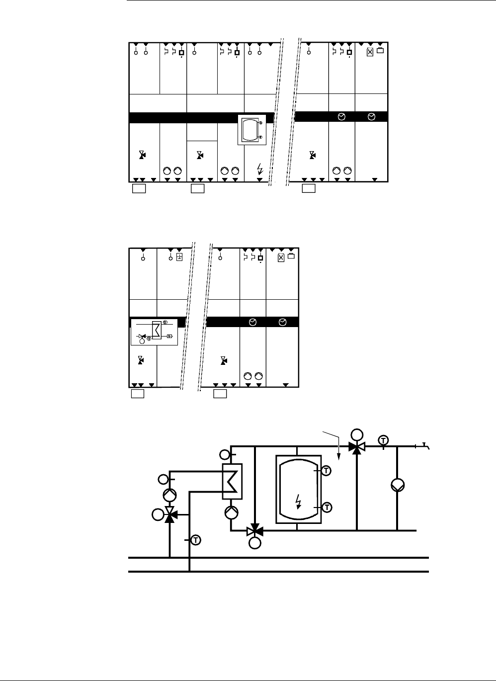
10 Brauchwasserbereitung
10.1 Funktionsblock-Übersicht
Für Anwendungen mit Speicher (Brauchwassertypen BW 0
…BW 5) steht der folgende
Funktionsblock zur Verfügung:
V
a
a
a d
a a
d dd
Q
Y
3P
Q QY
3P
Q Q
V
d d
B
d
0...10 V
2)
B
0...10 V
2)
1)
B
1)
B
V
d
d d
B
da
Q Q
B
0...10 V
Y
2)
3P
Q
dd
1)
Legionellen-
funktion-Relais
Primär
Vorlauf
Rücklauf
Vorlauf
Sekundär
Ver-
braucher
Zirku-
lation
Speicher
Betriebsart
zu
auf
zu
auf
zu
auf
Hoch-
haltung
oben
unten
Vorlauf
Zwangsladung
BW
3133W09de
Für Anwendungen mit direkter Brauchwasserbereitung (Brauchwassertyp BW 6
) steht
der folgende Funktionsblock zur Verfügung:
V
d
d
d
B
d
a
Q Q
B
0...10 V
Y
2)
3P
Q
dd
1)
Le
gionellen-
funktion-Relais
Ver-
braucher
Zirku-
lation
Betriebsart
zu
auf
Vorlauf
a
d
0...10 V
Y
2)
3P
a
Primär
Durchfluss
Vorlauf
Sekundär
zu
auf
Rücklauf
BW
3133W09de
TFlSec
TFlPr
PrPu
SecPu
CiPu
VlvCons
VlvPr
TRt
VlvPreHeatSec
TFlCons
ElHtr
3133S80
1 = TStTaTop
2 = TStTaBot
T
1
2
T
TFlPr
Vorlauftemperaturfühler primär
TRt
Rücklauftemperaturfühler
CiPu
Zirkulationspumpe
TStTaBot
Speicherfühler unten
ElHtr
Elektroeinsatz
TStTaTop
Speicherfühler oben
PrPu
Primärpumpe
VlvCons
Verbrauchermischer
SecPu
Sekundärpumpe
VlvPr
Primärmischer
TflCons
Vorlauftemperaturfühler Verbraucher
VlvPreHeatSec
Sekundärhochhaltung
TFlSec
Vorlauftemperaturfühler sekundär
Funktionsblock
Brauchwasserschema