Montageanleitung
Table Of Contents

Siemens Building Technologies 74 319 0914 0 B M4387xx 2018-03-15 3 / 4
MK.56..
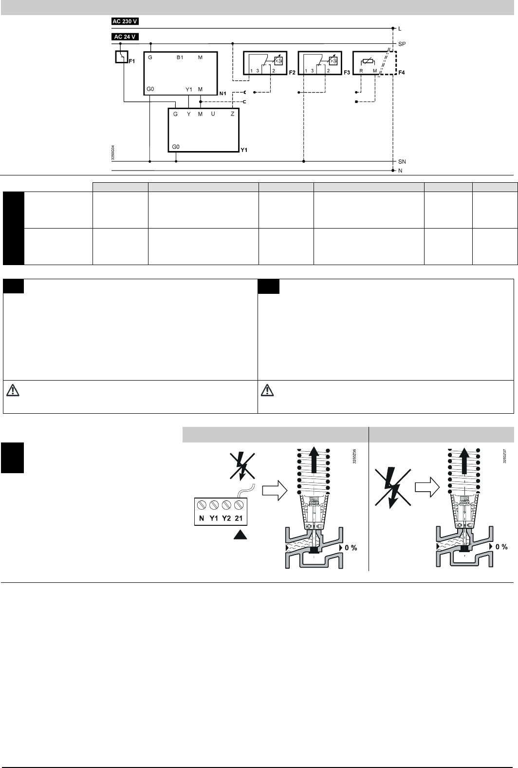
F1 F2 F3 F4 N… Y…
de Betriebsmittel Temperatur-
begrenzer
Frostschutzthermostat.
Klemmen 1–2 schliessen bei
Frostgefahr / Fühlerbruch
Temperatur-
wächter
Frostschutzwächter mit
0…1000 Ω Ausgang, z.B.
QAF21.. oder QAF61.. (nur
mit SKB62UA, SKC62UA)
Regler Stell-
antriebe
en Field devices Temperature
limiter
Frost protection thermostat.
Terminal 1–2 closes with
frost hazard / interrupted
temperature sensor
Temperature
detector
Frost protection monitor with
0…1000 Ω signal output,
e.g. QAF21.. or QAF61..
(only SKB62UA, SKC62UA)
Controlle Actuators
de Roter Sicherheitsbügel entfernen en Remove red safety bar
Den Stellantrieb elektrisch AUF fahren (Ventil öffnen), so dass der
rote Bügel, der eine Hubstellung von ca. 50 % fixiert hat, entfernt
werden kann.
Zum AUF fahren entweder Spannung an Klemme 21 und Y1
anlegen oder Spannung an G-G0 sowie Y > 70 %.
Danach roten Bügel entfernen und fachgerecht entsorgen.
Drive the actuator electrically to the OPEN position (open valve),
so that the red safety bar that has a stroke position of about 50%,
can be removed.
To OPEN apply voltage either on terminal 21 and Y1 or voltage at
G-G0 as well as Y > 70 %.
Then remove the red safety bar and dispose it properly.
Erst nach Entfernen des roten Sicherungsbügels ist die
Sicherheitsfunktion aktiviert.
The security feature is only enabled after the red security bar
is removed.
MK.53.. MK.56..
de
Notstellfunktion
en
Spring return
2010-2013 Siemens Switzerland Ltd