User Manual

9/10
Building Technologies Stetige Regelventile PN 16 mit Magnetantrieb CA2N4741de
HVAC Products 2018-02-14
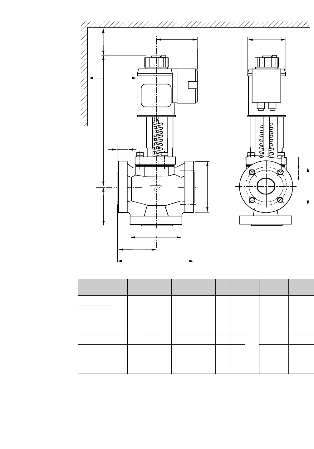
Massbilder
Abmessungen in mm
4741M01
E
H min.
H min.
H2
D2
K
B
L2
L3
D
L1
D
F
Ventiltyp DN B D D2 K L1 L2 L3 H2 H
min.
E F Gewicht
[kg]
M3K15FX06N
15 14 95
4x14
65 130 65 65 283
100
84 80
7
M3K15FX15N
M3K15FXN
M3K20FXN
20
16
105 75 150 75 75 282 9
M3K25FXN
25 115 85 160 80 80 289 10
M3K32FXN
32
18
140
4x18
100 180 90 90 325
94 100
16
M3K40FXN
40 150 110 200 100 100 324
150
18
M3K50FXN
50 20 165 125 230 115 105 343 24
Bemerkungen: ∂ Flanschabmessungen nach ISO 7005-2 / DIN 2533, PN 16
∂ Gewicht inkl. Verpackung