Data Sheet for Product

9/10
Siemens Modulating refrigerant valves with magnetic actuator, PN 32 CE2N4722en
Smart Infrastructure 2020-12-21
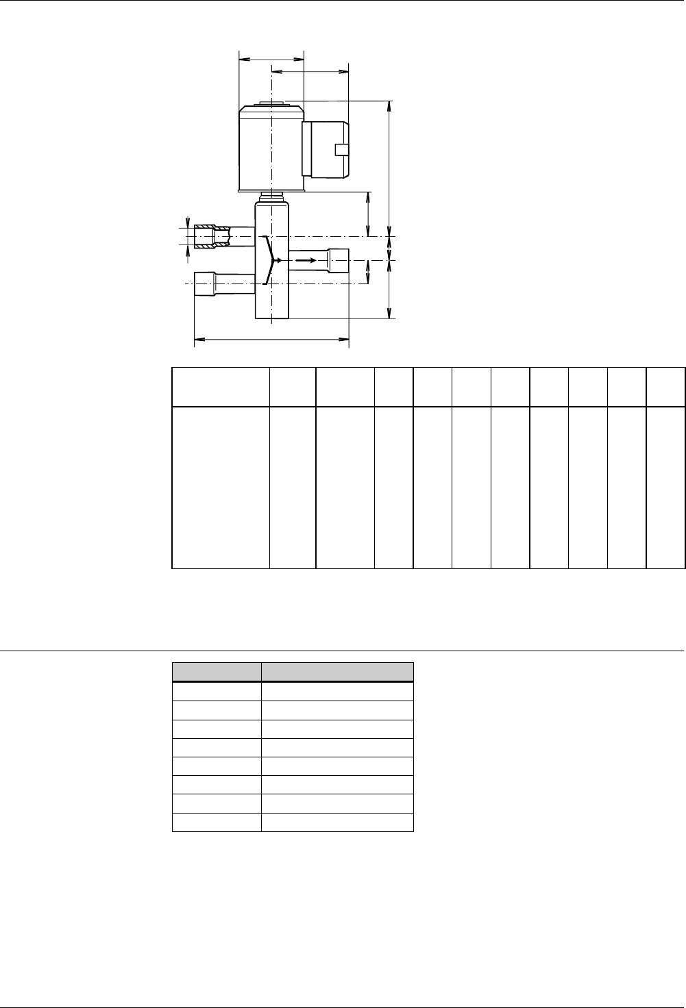
Dimensions
Dimensions in mm
L
2
1
3
A
B
H
3
H
1
H
2
H
2
C
D
9H702
DN ø D L H1 H2 H3 A B C W
Valve type [mm] [inches] [kg]
M3FK15LX06 15 5/8 150 57 25 164 60 73 67 2.6
M3FK15LX15 15 5/8 150 57 25 164 60 73 67 2.6
M3FK15LX 15 5/8 150 57 25 164 60 73 67 2.6
M3FK20LX 20 7/8 170 62 30 173 70 78 67 3.5
M3FK25LX 25 1 1/8 200 66 36 177 70 78 71 4.2
M3FK32LX
32 1 3/8 250 91 43 197 80 84 80 6.0
M3FK40LX 40 1 5/8 300 92 50 202 100 94 98 10.7
M3FK50LX 50 2 1/8 350 102 60 202 100 94 85 12.0
D : Pipe connections
W : Weight (incl. packaging)
Revision numbers
Type reference Valid up to rev. No.
M3FK15LX06
..F
M3FK15LX15
..F
M3FK15LX
..F
M3FK20LX
..F
M3FK25LX
..F
M3FK32LX
..G
M3FK40LX
..H
M3FK50LX
..H