User Manual

3/10
Siemens Modulating refrigerant valves with magnetic actuator, PN 32 CE2N4722en
Smart Infrastructure 2020-12-21
Sizing
Correct valve sizing (to ensure a sufficiently large pressure drop Dp
v
100 across the fully
open valve) is the key to the correct operation of a refrigeration unit. All the components
must be coordinated, and this can be ensured only by the refrigeration specialist.
The application examples on pages 5 and show the recommended pressure drop in
each case.
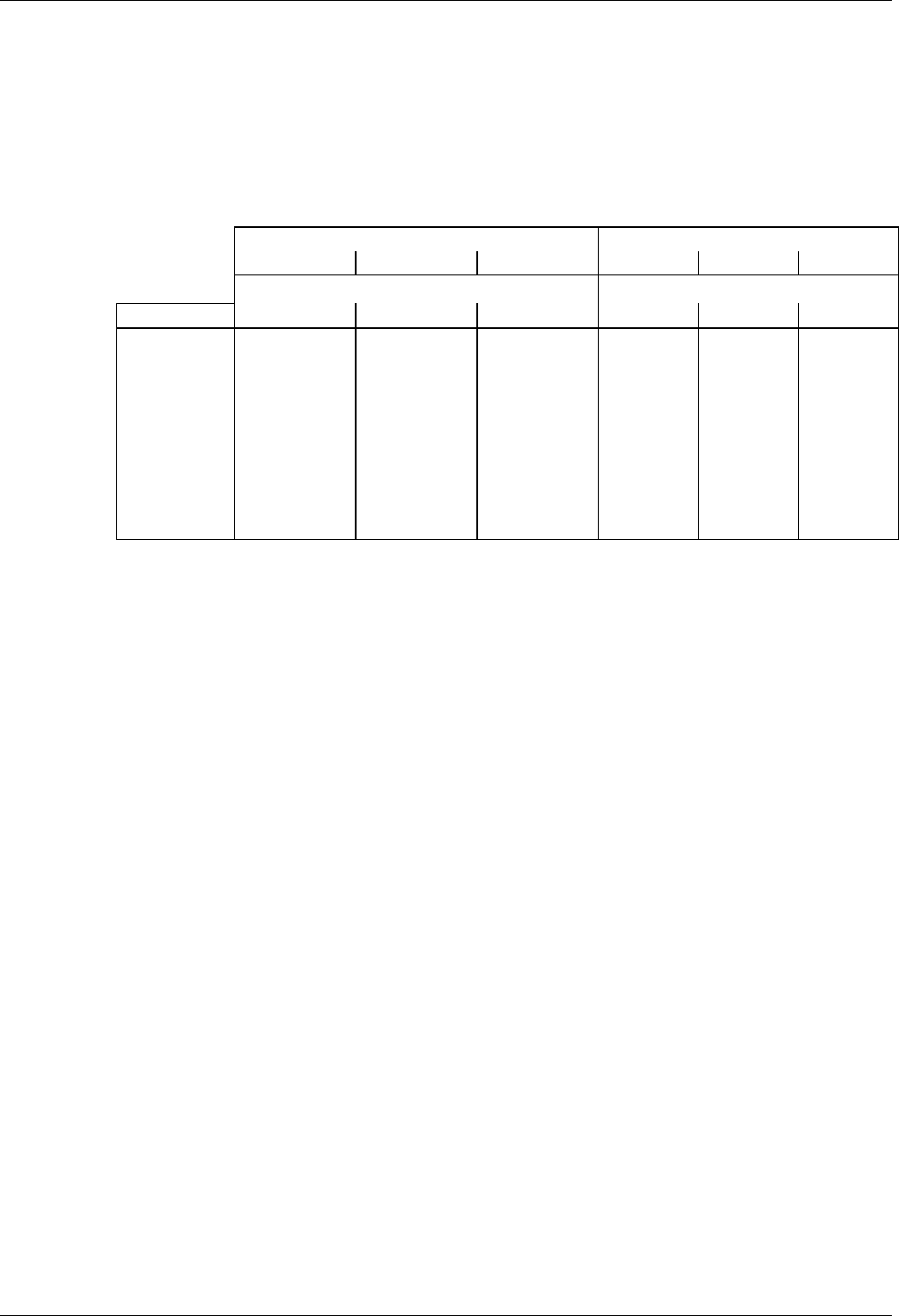
Pressure differential ∆p
V100
= 0.5 bar across the fully-open valve. Nominal capacity Q
0
in kW at an evaporation temperature t
o
of 5 °C and a liquid temperature t
fl
of 30 °C.
Hot gas Liquid
R407C (R22) R134a (R12) R404A / R507 R407C (R22) R134a (R12) R404A R507
Condensation temperature tc [°C] Liquid temperature tfl [°C]
Valve type 30 40 50 30 40 50 30 40 50 30 40 30 40 30 40
M3FK15LX06 4.5 4.0 3.6 3.7 3.3 2.9 3.6 3.2 2.9 21 19 20 18 15 12
M3FK15LX15 11 10 8.9 9.2 8.2 7.2 8.9 8.0 7.2 54 49 51 45 37 31
M3FK15LX
22 20 18 18 16 14 18 16 14 107 97 102 91 74 62
M3FK20LX 37 33 30 31 27 24 30 27 24 179 162 170 151 124 103
M3FK25LX 59 53 48 49 44 38 47 43 38 286 259 272 242 199 165
M3FK32LX 89 80 72 74 66 57 71 64 58 429 389 408 364 298 248
M3FK40LX 149 134 119 123 109 96 119 107 96 715 648 681 606 497 413
M3FK50LX 223 201 179 184 164 143 178 160 144 1073 971 1021 909 745 619
Dp
v100
= Differential pressure across the fully open valve (control path 1 ® 3) by a volume flow
100
V
&
Refrigeration capacity
Q
0
Selection table for
approximate guide to
valve size