Mounting Instructions

8/12 03.10.2013 M4626 4 319 2685 0 k Siemens Building Technologies
G
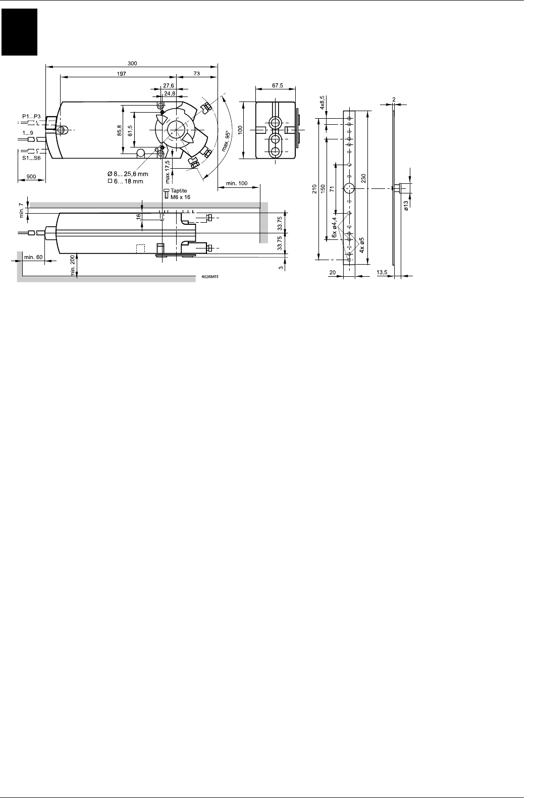
Massbild
Dimensions
Encombrement
Måttuppgift
Maatschets
Ingombri
Mittapiirros
Dimensiones
Målskitse
尺寸
외형 치수
外形寸法
Masse in mm
Dimensions in mm
Dimensionsein
mm
Mått i mm
Afmetingen in mm
Dimensioni in mm
Mitat mm
Dimensiones en
mm
Mål i mm
单位 mm
단 위 mm
単位 mm










