Operating Instructions
SINAMICS G120 CU230P-2 Control Units
List Manual (LH9), 04/2014, A5E33838102B AA
589
3 Function diagrams
3.10 Vector control
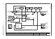
Fig. 3-82 6491 – Flux control configuration
- 6491 -
Function diagram
87654321
fp_6491_97_01.vsd
Vector control
G120 CU230P-2
07.04.2014 V4.7
Flux control configuration
01
02
00
[6723.6]1
03 1
04
05
06
07
08
009
10 0
11
12
13
14
15
Flux control, configuration
Bit No. Meaning
Factory setting
Reserved
1 = Flux setpoint, differentiation active
Quick magnetizing active
1 = Flux characteristic load-dependent
1 = Flux build-up control active
[6723.6]
Flux ctrl config
p1401 [D]
Reserved
Reserved
Reserved
Reserved
Reserved
Reserved
Reserved
Reserved
Reserved
1
0
1 = flux boost under no load conditions
1 = flux boost at low speed










