Operating Instructions

3 Function diagrams
3.6 CANopen communication
SINAMICS G120 CU230P-2 Control Units
540 List Manual (LH9), 04/2014, A5E33838102B AA
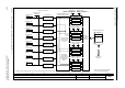
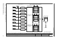
Fig. 3-37 9226 – Status word, CANopen
- 9226 -
Function diagram
87654321
fp_9226_97_68.vsd
CANopen
G120 CU230P-2 CAN
07.04.2014 V4.7
Status word, CANopen
11
12
13
14
15
10
9
8
7
6
5
4
3
0
1
2
(0)
Status word bit 8
p8785
(0)
Status word bit 14
p8786
(0)
Status word bit 15
p8787
r8784
Status word
Bit No. Status word CANopen
1 = Ready for switching on
From fault buffer
From sequence control
From alarm buffer
Bit 9 = 1 --> Ready to exchange process data
CANopen control word bit 8 = 0: from speed signals [8011.8] (r2197.7)
CANopen control word bit 8 = 1: from speed signals [8010.8] (r2199.0)
From status word speed controller
1 = Ready for operation (DC link loaded, pulses inhibited)
1 = Operation enabled (drive follows n_set)
1 = Fault present
1 = No coast down active
1 = No Quick stop active
1 = Switching on inhibited active
1 = Alarm present
Freely interconnectable (BI: p8785)
1 = Control requested
1 = Target reached
1 = Torque limit reached
1 = Velocity equal to zero
Reserved
Freely interconnectable (BI: p8786)
Freely interconnectable (BI: p8787)
With setpoint channel: connect p2151 with r1119 [8011.3].
[8060]
[8065]
[2522]
<1>
From sequence control
From sequence control
From sequence control
From sequence control
From sequence control
<1>
From speed signals [8010.8] (r2199.0)
<2> Only if p8791 = 1 or 3.
<2>