Operating Instructions
3 Function diagrams
3.13 Technology functions
SINAMICS G120 CU230P-2 Control Units
698 List Manual, 04/2018, A5E33838102
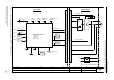
Fig. 3-129 7033 – Essential service mode (ESM)
- 7033 -
Function diagram
87654321
fp_7033_97_01.vsd
Technology functions
G120 CU230P-2
13.03.2018 V4.7_10
Essential Service Mode (ESM)
F03505 caused by wire breakage in
signal source of p2264
10 s
r1078
Total setpoint eff [rpm]
0
1
ESM setp_src alt
0 ... 2
p3882 (0)
0
1
2
Tec_ctrl status
r2349
r2349
.8
r2349.9
0
1
0
1
2
0
1
r0755
CU AI value in % [%]
[0]
0
1
r2050
PZD recv word
[1]
4
3
0
1
ESM setp_src
0 ... 7
p3881 (0)
-1
Last
known
setpoint
F03505 caused by wire breakage in AI 0
[3040.6]
p2000
4000 hex
[2468.4]
[2252.5]
[3040.5]
[7958.3]
[2252.8]
[3010.5]
[3010.5]
[3050.5]
[3030.6]
(0)
ESM act s s
p3880
(0)
ESM rot dir s s
p3883
Speed setpoint
in Extended
Service Mode
0
1
-1
0
1
-1
0
1
-1
0
1
-1
r3889.0
1 = Extended service mode (ESM) activated
r3889.1
1 = Direction of rotation inverted
r3889.2
1 = Setpoint signal lost
r3889.6
r3889.3
1 = Technology controller
actual value lost (p2264)
1 = Technology controller during
essential service mode active
1 = Setpoint failure
r2043.0
&
&
&
&
1
&
1
<6
7
6
n_set_fixed 15
p1015 [D] (0.000)
n_set_fixed 15
p1015 [D] (0.000)
n_max
p1082
n_ref f_ref
p2000
(2090.1)
OFF2 S_src 1
p0844 [C]
(1)
OFF2 S_src 2
p0845 [C]
(2090.0)
ON / OFF (OFF1)
p0840 [C]
r3889.9
1 = Response OFF1/OFF2 activated
1 = ON/OFF1
r0898.0
r0898.1
1 = OC/OFF2
>4
x
x
1
· x
2
100 %
x
2
x
1










