Operating Instructions
SINAMICS G120 CU230P-2 Control Units
List Manual, 04/2018, A5E33838102
663
3 Function diagrams
3.10 Vector control / U/f control
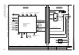
Fig. 3-97 6791 – Id setpoint (RESM, p0300 = 6xx)
- 6791 -
Function diagram
87654321
fp_6791_97_01.vsd
Vector control / U/f control
G120 CU230P-2
13.03.2018 V4.7_10
Id setpoint (RESM, p0300 = 6xx)
2
[6792.1]
0
r0070
Vdc act val [V]
Field_ctrl Tn
10 ... 10000 [ms]
p1596 [D] (300)
Drv filt type mot
0... 4
p0230 (0)
Pulse freq setp
0.500 ... 16.000 [kHz]
p1800 [D] (4.000)
Calculation, max. modulation depth
r1597
Field_ctrl outp [%]
Modulator mode
0 ... 10
p1802 [D] (10)
Modulat depth max
20.0 ... 120.0 [%]
p1803 [D] (115.0)
U_reserve dyn
0.0 ... 150.0 [Vrms]
p1574 [D] (2.0)
–
+
U_max 1
Modulat_depth max [%]
r0073
[6714.8]
[6640.1]
Field_ctr add_setp
-80.00 ... 50.00 [%]
p1595 [D] (0.00)
r0063
Actual speed [rpm]
[6714.1]
[6791.1]
psid, min
-1
Flux red dec T
20 ... 5000 [ms]
p1578 [D] (200)
Flux red incr T
0 ... 5000 [ms]
p1579 [D] (4)
0
Id_setp total [Arms]
r1624
[6640.5]
[6710.1]
[6799.7]
[6640.1], [6714.1]
r0077
Iq_set [Arms]
[6710.8]
[6714.1]
0
r1568
RESM flux channel [%]
[4]
r1568
RESM flux channel [%]
[5]
[6792.3]
Torque factor and
magnetizing current
Flux setpoint quadrature axis
From the flux model
Flux setpoint
[6790.8]
Flux setting value
[6790.8]
Field weakening value,
total
Field weakening value, pre-control
M
Iq
Iq
M
–
+
Voltage max [Vrms]
r0071
Flux setpoint
quadrature axis
[6791.8]
U_set 1
–
+
[6714.8]
U_tgt val lim
50.00 ... 300.00 [%]
p1575 [D] (200.00)
Field weak scal
80.0 ... 120.0 [%]
p1586 [D] (100.0)
r1598
Flux setp total [%]
ZSW cl-loop ctrl
r0056
r0056
1 = Field weakening active
[2526.3]
r0083
Flex setp [%]
.8
RESM: Reluctance synchronous motor
Pre-control calculation










