Operating Instructions
Signals and monitoring functions
Function diagrams
2-631
© Siemens AG 2008 - 2013 All Rights Reserved
SINAMICS G120 CU230P-2 Control Units List Manual (LH9), 01/2013
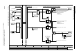
Fig. 2-121 8011 – Speed signals 2
- 8011 -
Function diagram
87654321
fp_8011_97_01.vsd
Signals and monitoring functions
G120 CU230P-2
12.12.2012 V4.6
Speed signals 2
[8010.2]
0
1
<1>
Calculated.
Evaluation only for: Pulse
enable and operating enable
(r0899.2)
or OFF1
or OFF3
or rotating measurement.
r2169
n_act smth message [1/min]
ZSW monitor 2
r2198
r2198
.5
ZSW monitor 2
r2198
r2198
.4
ZSW monitor 1
r2197
r2197
.7
ZSW monitor 1
r2197
r2197
.3
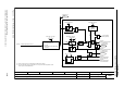
n_thresh val 3
0.00 ... 210000.00 [1/min]
p2161 [D] (5.00)
[2534.3]
0
1
0
1
n_thresh val 4
0.00 ... 210000.00 [1/min]
p2163 [D] (90.00)
<1>
n_hysteresis 4
0.00 ... 200.00 [1/min]
p2164 [D] (2.00)
n_hysteresis 3
0.00 ... 300.00 [1/min]
p2150 [D] (2.00)
n_act >= 0
n_set > 0
|n_set| < p2161
Speed setp - act val deviation in
tolerance t_off
[2536.3]
0
1
[2534.3]
<1>
n_hysteresis 3
0.00 ... 300.00 [1/min]
p2150 [D] (2.00)
[3080.8]
n_set for msg
(1170[0])
p2151 [C]
0
1
n_hysteresis 3
0.00 ... 300.00 [1/min]
p2150 [D] (2.00)
+
–
0T
t_del_off n_i=n_so
0.0 ... 10000.0 [ms]
p2166 [D] (200.0)
1
0
1
A07903 is only signaled for
p2149.0 = 1 and r2197.7 = 0.
A07903 "Motor speed deviation"
Monit config
p2149
.0
T0
t_on n_act=n_set
0.0 ... 10000.0 [ms]
p2167 [D] (200.0)
ZSW monitor 3
r2199
r2199
.4
[2537.3]
Speed setp - act val deviation in
tolerance t_on
Priority
1 RESET
2 SET
[2537.3]
SET
(Q=1)
RESET
(Q=0)
Q
Q
(0)
RFG active
p2148 [C]
ZSW monitor 3
r2199
r2199
.5
1 = RESET
Ramp-up/ramp-down completed
<1>
<1>
<1>
<2>
<2>
[2536.3]
0
0