Installation Instructions
Table Of Contents
- PM230 Power Module, IP55
- Legal information - Warning notice system
- Table of contents
- 1 Changes in this manual
- 2 Fundamental safety instructions
- 3 Launch
- 4 Installing/mounting
- 5 Connecting
- 6 Service and maintenance
- 7 Technical data
- 7.1 Overload capability of the inverter
- 7.2 Cable cross-sections and tightening torques
- 7.3 Electromagnetic compatibility - Overview
- 7.4 Ambient conditions
- 7.5 General technical data
- 7.6 Specific technical data
- 7.7 Restrictions for special ambient conditions
- 7.8 Current reduction depending on pulse frequency
- 7.9 Electromagnetic compatibility of variable-speed drives
- 8 Spare parts and accessories
- A Appendix
- Index

Installing/mounting
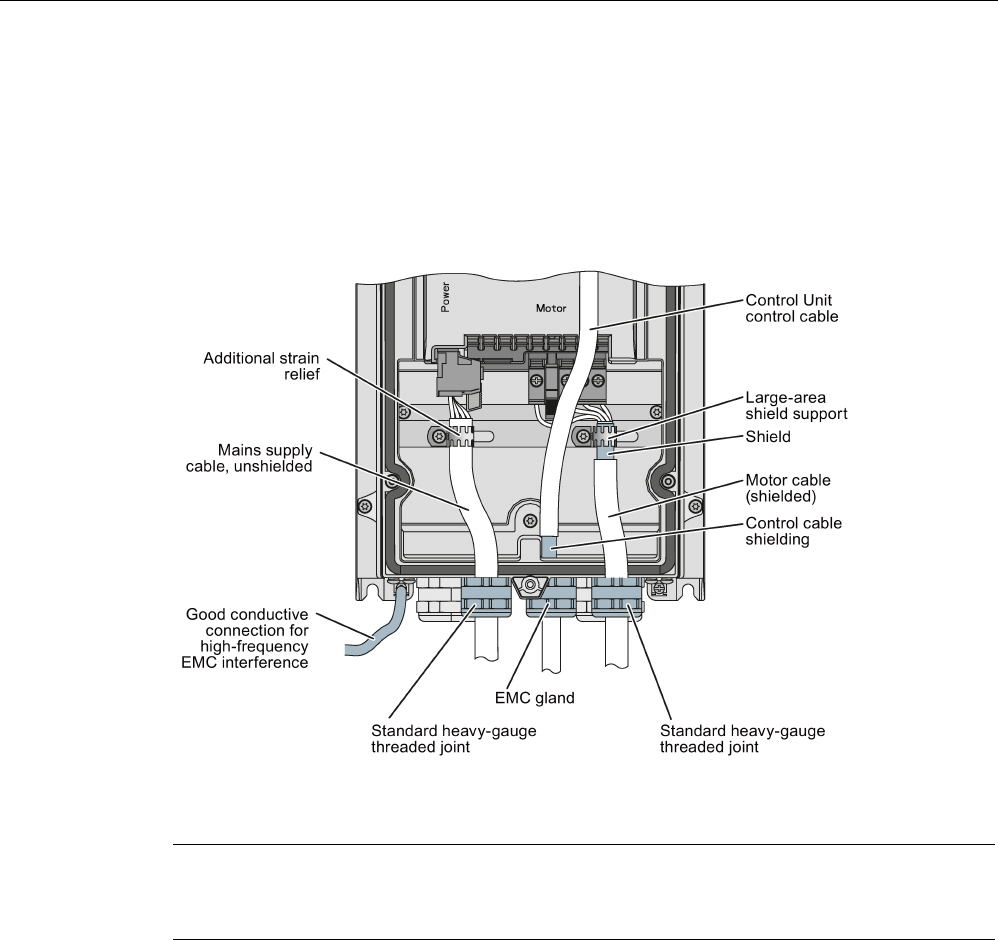
4.2 EMC compliant installation of a machine or system
PM230 Power Module, IP55
Hardware Installation Manual, 12/2016, A5E35319202B AB
21
4.2
EMC compliant installation of a machine or system
EMC compliant connection of a Power Module
The following diagram shows the EMC compliant installation of a Power Module with degree
of protection IP55.
Figure 4-1 EMC-compliant connection of an PM230 Power Module, degree of protection IP55
Note
You must use a shielded cable if you use the control termi
nals of the Control Unit. Connect
the shield to the gland plate via an EMC screw.