Operating Instructions
SINAMICS G120 CU230P-2 Control Units
List Manual, 04/2018, A5E33838102
675
3 Function diagrams
3.12 Vector control, Dynamic Drive Control (p0096 = 2)
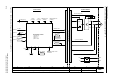
Fig. 3-107 6820 – Speed control and generation of the torque limits, overview (p0096 = 2)
- 6820 -
Function diagram
87654321
fp_6820_97_01.vsd
Vector control, Dynamic Drive Control
G120 CU230P-2
13.03.2018 V4.7_10
Speed control and generation of the torque limits, overview (p0096 = 2)
p1400 p1401 r0056 r1408
[6821.1]
[3001.8]
[6821.1]
Symmetrizing
Generating the
torque limits
[6490] Closed-loop speed control configuration
[6491] Closed-loop flux control configuration
[2526] Status word closed-loop control (r0056)
[2530] Status word closed-loop current control (r1408)
r0062
n_set after filter [rpm]
n_C n_act T_s SL
p1452
r1438
n_ctrl n_set [rpm]
Mot M_mom of inert
p0341
Mot MomInert Ratio
p0342
n_ctrl SL Kp
p1470
n_ctrl SL Tn
p1472
r1518
M_accel [Nm]
r1508
M_set bef. M_suppl [Nm]
r0079
M_set [Nm]
r1538
M_max upper eff [Nm]
r1539
M_max lower eff [Nm]
Current limit
p0640
M_max upper
p1520 [D] (0.00)
M_max lower
p1521 [D] (0.00)
a_prectrl scal
p1496
n_set_filt 1 T
p1416
[6822]
[6824]
[6826]
r1170
Speed setpoint sum [rpm]
Kp Tn
n_pre-control
[0]
P_max mot
p1530
P_max gen
p1531
Kp adaptation Tn adaptation
–
Speed setpoint, Pre-control balancing, acceleration model (p0096 = 2)
Speed controller with Kp_n/Tn_n
adaptation (p0096 = 2)
Torque setpoint (p0096 = 2)
[6828] Current/power/torque limits (p0096 = 2)
[6821.1]
r0063
Actual speed [rpm]
[0]
r0067
Current max [Arms]
n_model