Operating Instructions
3 Function diagrams
3.11 U/f control, Standard Drive Control (p0096 = 1)
SINAMICS G120 CU230P-2 Control Units
670 List Manual, 04/2018, A5E33838102
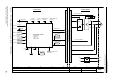
Fig. 3-103 6853 โ U/f control, resonance damping and slip compensation (p0096 = 1)
- 6853 -
Function diagram
87654321
fp_6853_97_01.vsd
U/f control, Standard Drive Control
G120 CU230P-2
13.03.2018 V4.7_10
U/f control, Resonance damping and slip compensation (p0096 = 1)
โ
+
-1
0
1
[6850.7]
250 ms
6 %
10 % 95 %
1
[2526.2]
<1>
<1>
0
p1334
f/f
Mot N
1
p1334 + 4 %
f/f
Mot N
U/f resonance damping U/f slip compensation
If p1349 = 0: the limit is 0.95 ยท f Mot N ๎ 45 Hz.
r0078
Iq_act [Arms]
Uf Res_damp T
1.00 ... 1000.00 [ms]
p1339 [D] (20.00)
Uf Res_damp gain
0.00 ... 100.00
p1338 [D] (0.00)
r0066
f_outp [Hz]
Slip comp scal
0.0 ... 600.0 [%]
p1335 [D] (0.0)
Slip comp lim val
0.00 ... 600.00 [%]
p1336 [D] (250.00)
ZSW cl-loop ctrl
r0056
r0056
.10
Uf res_damp f_max
0.00 ... 3000.00 [Hz]
p1349 [D] (0.00)
r1337
Slip comp act val [%]
Mot slip_rated [Hz]
r0330 [M]
[6850.6]
Mot slip_rated [Hz]
r0330 [M]
100 %
f_Slip [Hz]
r0065
[6856.1]