Installation Instructions
Table Of Contents
- Power Module PM230, IP20 / Push-through technology (PT)
- Legal information - Warning notice system
- Table of contents
- 1 Changes in this manual
- 2 Fundamental safety instructions
- 3 Introduction
- 4 Installing/mounting
- 5 Connecting
- 6 Service and maintenance
- 7 Technical specifications
- 7.1 Overload capability of the inverter
- 7.2 Cable cross-sections and tightening torques
- 7.3 Electromagnetic compatibility - overview
- 7.4 Ambient conditions
- 7.5 General technical data
- 7.6 Detailed technical data
- 7.7 Restrictions for special ambient conditions
- 7.8 Electromagnetic compatibility of variable-speed drives
- 8 Spare parts and accessories
- A Appendix
- Index

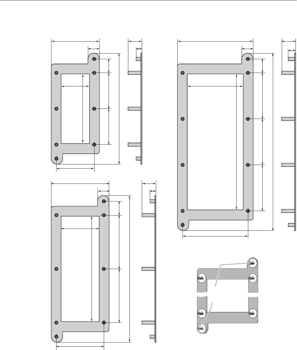
Dimension drawings for mounting frames
IRUPRXQWLQJ
RQWRWKH
FDELQHWSDQHO
)6$
)6%
)6&
Spare parts and accessories
8.3 Optional accessories
Power Module PM230, IP20 / Push-through technology (PT)
80 Hardware Installation Manual, 08/2016, A5E34331322B AB