Operating Instructions

3 Function diagrams
3.10 Vector control / U/f control
SINAMICS G120 CU230P-2 Control Units
666 List Manual, 04/2018, A5E33838102
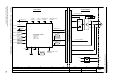
Fig. 3-100 6799 – Display signals
- 6799 -
Function diagram
87654321
fp_6799_97_01.vsd
Vector control / U/f control
G120 CU230P-2
13.03.2018 V4.7_10
Display signals
100 ms
[6730.1]
[6714.8]
[6714.8]
[6799.8]
300 ms100 ms
100 ms
100 ms
100 ms
300 ms
100 ms
300 ms
100 ms
[6730.4]
[6730.4]
[7017.8]
[6730.1]
[6730.4]
r0060
n_set before filt. [rpm]
r0066
f_outp [Hz]
r0072
U_output [Vrms]
r0070
Vdc act val [V]
r0074
Mod_depth [%]
r0076
Id_act [Arms]
r0078
Iq_act [Arms]
Speed setpoint [rpm]
r0020
r0021
Actual speed [rpm]
Output frequency [Hz]
r0024
r0025
Output voltage [Vrms]
r0026
DC link voltage [V]
r0027
Motor current [Arms]
Mod_depth smth [%]
r0028
Id_act smooth [Arms]
r0029
Iq_act smooth [Arms]
r0030
Actual torque [Nm]
r0031
Disp_val T_smooth
p0045
r0063[1]
Actual speed [rpm]
300 ms
[6730.1] r0087
Cos phi act
Cos phi smooth
r0038
[6799.8]
100 ms
r0032
Power [kW]
r0063
Actual speed [rpm]
[0]
r0068
I_act abs val [Arms]
r0080
Actual torque [Nm]
r0082
P_act [kW]
Disp_val T_smooth
p0045
r0068
I_act abs val [Arms]
3
[6730.4]
r0072
U_output [Vrms]
[6730.1]
r0087
Cos phi act
r0082
P_act [kW]
Iq
M
[6721.8]
[6730.1]
[6791.8]
r0080
Actual torque [Nm]
r0080
Actual torque [Nm]
Disp_val T_smooth
p0045
r0082
P_act [kW]
[0]
r0082
P_act [kW]
Disp_val T_smooth
p0045
r0063
Actual speed [rpm]
[6714.8]
[6799.6]
[6799.6]
Actual speed [rpm]
r0022
[0]
[1]
[2]
[0]
[0]
[0]
[1]
[1]
[0]
[6730.1]