Operating Instructions
3 Function diagrams
3.4 PROFIenergy
SINAMICS G120 CU230P-2 Control Units
576 List Manual, 04/2018, A5E33838102
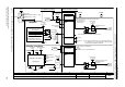
Fig. 3-17 2382 – States
- 2382 -
Function diagram
87654321
fp_2382_97_61.vsd
PROFIenergy
G120 CU230P-2 PN
13.03.2018 V4.7_10
States
PROFIdrive states
(0)
Pe sw-on_inh s_src
p5614
&
&
p5611
1 = Inhibit PROFIenergy
.0
p5611
1 = Drive initiates OFF1
.1
1 = Trans into energy-saving
mode from PROFIdrive
state S4 possible
PROFIenergy Ready for
operation
r5613.0
1
A08800
PROFIenergy states
r5613.1
1 = PE active
1 = PE inactive
PROFIenergy Energy-
saving mode active
PROFIenergy POWER OFF
Pe mode ID
r5600
PROFIenergy Energy-saving mode 2
POWER ON
S1: Switching on inhibited
S2: Ready for switching on
S3:Ready for operation
S4: Operation
<1>
Excerpt from: Basic state machine of a PROFIdrive drive axis (source: PROFIBUS Nutzerorganisation (PNO)).<1>
Operation
OFF1
1
&
p5611
.2
p5611.0
Start_Pause
Drive at standstill
1
Start_Pause
1 = Inhibit PROFIenergy
1
End_Pause
CPU STOP
&
Diagnostic alarms to the CPU inhibited.
Connection termination
<2>
<2>