Operating Instructions

Faults and alarms
Function diagrams
2-639
© Siemens AG 2008 - 2013 All Rights Reserved
SINAMICS G120 CU230P-2 Control Units List Manual (LH9), 01/2013
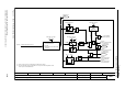
Fig. 2-128 8050 – Overview
- 8050 -
Function diagram
87654321
fp_8050_97_51.vsd
Faults and warnings
G120 CU230P-2
12.12.2012 V4.6
Overview
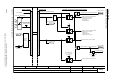
r2109r0948r0949r0945
III
III
III
r2125r2123r2124r2122
III
III
Fxxxxx
Fyyyyy
Axxxxx
Ayyyyy
[0]
[15]
p2128
r2929
p2100[0]
[19]
[1]
p2101
p2126[0]
[19]
[1]
p2127
p2118[0]
[19]
[1]
p2119
Fzzzzz
faults
Azzzzz
alarms
[8060] Fault buffer
[8065] Alarm buffer
Code Value coming going
Code Value coming going
[8070] Fault/alarm trigger word
Changes the fault response Changes the message type
Changing the acknowledge mode
[8075] Fault/alarm configuration
t_System relative
0 ... 4294967295 [ms]
p0969 (0)
Fault cases qty
0 ... 65535
p0952 (0)
Alarm counter
0 ... 65535
p2111 (0)