Operating Instructions
3 Function diagrams
3.12 Vector control, Dynamic Drive Control (p0096 = 2)
SINAMICS G120 CU230P-2 Control Units
678 List Manual, 04/2018, A5E33838102
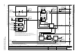
Fig. 3-110 6824 – Speed controller with Kp_n/Tn_n adaptation (p0096 = 2)
ZSW n_ctrl
r1407
r1407
- 6824 -
Function diagram
87654321
fp_6824_97_01.vsd
Vector control, Dynamic Drive Control
G120 CU230P-2
13.03.2018 V4.7_10
Speed controller with Kp_n/Tn_n adaptation (p0096 = 2)
[6822.8] [6826.1]
Kp_n_basic
Tn_n_basic
Tn_n_adapt
1 01 0
Kp_n_adapt
[6490.6]
Hold Set
Set
Val
[2522.7]
[2522.3]
[2522.3]
Kp
<1>
Tn
Kp
Kp
[6828.8]
[6828.8]
[2522.3]
[6490.6]
n_ctrl config
p1400.5
1 = Kp/Tn adaptation active
n_ctrl config
p1400
1 = Automatic Kp/Tn adaptation active
Dynamic reduction, field
weakening
r0064
n_ctrl sys dev [rpm]
r1438
n_ctrl n_set [rpm]
r1445
n_act smooth [rpm]
r0063
Actual speed [rpm]
n_C n_act T_s SL
0.00 ... 32000.00 [ms]
p1452 [D] (10.00)
r1538
M_max upper eff [Nm]
r1539
M_max lower eff [Nm]
Enable speed controller
from sequence control S4: Operation
.7
1 = Torque limit reached
Integrator control
Speed controller
To Kp/Tn adaptation
n_ctrl SL Kp
0.000 ... 999999.000
p1470 [D] (0.300)
n_ctr Tn eff [ms]
r1469
M_set from speed controller
1 = Speed controller active
ZSW n_ctrl
r1407
r1407
.5
1 = Speed controller, I component set
ZSW n_ctrl
r1407
r1407
.6
ZSW n_ctrl
r1407
r1407
.3
r1482
n_ctrl I-M_outp [Nm]
r1468
n_ctr Kp eff
n_ctrl SL Tn
0.0 ... 100000.0 [ms]
p1472 [D] (20.0)
Torque setting value, speed controller
[6824.1]
1 = Speed controller, I component held
–
+
Tn
+
+
[6824.8]
[6824.8]
Kp
n
nn
Kp_n_basic
Tn_n_basic
<2>
<2>
r0063
Actual speed [rpm]
n_ctr Kp n up scal
0.0 ... 200000.0 [%]
p1461 [D] (100.0)
n_ctr Tn n up scal
0.0 ... 200000.0 [%]
p1463 [D] (100.0)
n_ctrl n upper
0.00 ... 210000.00 [rpm]
p1465 [D] (210000.00)
n_ctrl n lower
0.00 ... 210000.00 [rpm]
p1464 [D] (0.00)
[0]
Kp
Tn
Kp
[6834.8]
[6836.8]
.0
For p1472 = 0.0 s or 100.0 s, the I component is
disabled (integral action time = infinite).
If the lower transition point exceeds the upper transition
point, the Kp-adaptation also changes over.
<2>
<1>
x
y