Operating Instructions

SINAMICS G120 CU230P-2 Control Units
List Manual, 04/2018, A5E33838102
669
3 Function diagrams
3.11 U/f control, Standard Drive Control (p0096 = 1)
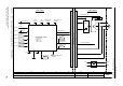
Fig. 3-102 6851 – U/f control, characteristic and voltage boost (p0096 = 1)
- 6851 -
Function diagram
87654321
fp_6851_97_52.vsd
U/f control, Standard Drive Control
G120 CU230P-2
13.03.2018 V4.7_10
U/f control, characteristic and voltage boost (p0096 = 1)
[6850.3]
0
1
0
0
[6850.2]
1
0
0
Linear
Parabolic
f_set
p1312 is only active at the first acceleration after pulse enable.
Voltage max [Vrms]
r0071
Op/cl-lp ctrl_mode
0 ... 20
p1300 [D] (2)
ZSW cl-loop ctrl
r0056
r0056
.6
ZSW cl-loop ctrl
r0056
r0056
.5
R_stator act
r0395
Voltage max r0071
Mot U_rated p0304
Mot U_rated p0304
r0067
Current max [Arms]
Mot f_rated
p0310 [M]
Mot f_rated
p0310 [M]
<1>
+
+
+
U_boost total [Vrms]
r1315
<1>
Voltage max r0071
2
0
I_start (Ua) perm
p1310 [D]
I_start accel
p1311 [D]
I_start start
p1312 [D]
r0078
Iq_act [Arms]
Dependent on the
load current
3
x
[6856.1]
[2526.2]
[2526.2]
x² + r0331²
p0305² - r0331²
Mot I_rated
p0305 [M]
+
RFG ZSW
r1199
r1199
.0