Installation Instructions

A6V101004423_enUS_b
5
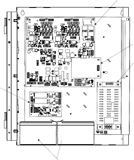
9. For FS20 panels, install the FS20 Modules onto the adapter plate as shown in Figure 8.
FCA2015-U1
BATTERIES UP TO
12 AH
FP2011-U1
POWER SUPPLY
(170w)
FCI2011-U1/XCI2001-U1
EXPANSION MODULE
FCI2016-U1/FCI2017-U1
PERIPHERY
BOARD
Figure 8: Mounting the FS20 Modules onto the Adapter Plate








