Installation Instructions
Table Of Contents
- Observaciones importantes
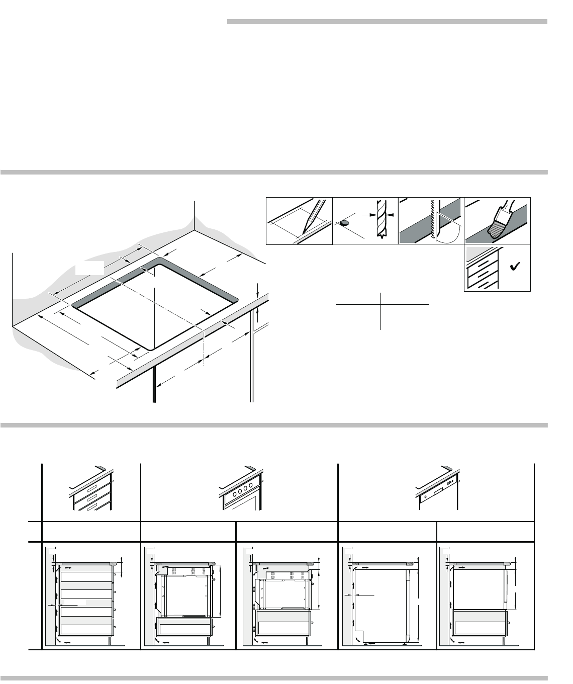
- Preparación de los muebles de montaje, figuras 1/2/3/4
- Instalar el aparato, figuras 5/6
- Desmontar el aparato
- Wichtige Hinweise
- Vorbereitung der Einbaumöbel, Abb. 1, 2, 3, 4
- Einbau des Geräts, Abbildungen 5/6
- Ausbau des Geräts
- Important notes
- Preparation of assembly kitchen units, figures 1/2/3/4
- Installing the appliance, figures 5/6
- Uninstalling the appliance
- Remarques importantes
- Préparation des meubles de montage, schémas 1, 2, 3 et 4
- Installer l'appareil, schémas 5/6
- Démonter l'appareil
- Indicazioni importanti
- Preparazione dei mobili per il montaggio, figure 1/2/3/4
- Installare l'apparecchio, figure 5/6
- Smontare l'apparecchio
- Belangrijke aanwijzingen
- Gereedmaken van de meubels waarin het apparaat wordt gemonteerd, afbeeldingen 1/2/3/4
- Installeren van het apparaat, afbeeldingen 5/6
- Het apparaat demonteren
- Vigtige henvisninger
- Forberedelse af monteringsmøblerne, figurer 1/2/3/4
- Installation af apparatet, figur 5/6
- Afmontering af apparatet
- Instruções importantes
- Preparação dos móveis de montagem (figuras 1/2/3/4)
- Instalar o aparelho (figuras 5/6)
- Desmontar o aparelho
- Viktige henvisninger
- Klargjøring av møblene for montering, figur 1/2/3/4
- Installere apparatet, figur 5/6
- Demontere apparatet
- Σημαντικές υποδείξεις
- Προετοιμασία των επίπλων συναρμολόγησης, σχήματα 1/2/3/4
- Εγκατάσταση της συσκευής, σχήματα 5/6
- Αποσυναρμολόγηση της συσκευής
- Viktigt att observera
- Förberedelse av köksskåpen för montering, bilderna 1/2/3/4
- Montera apparaten, bilderna 5/6
- Demontera apparaten
- Tärkeitä vihjeitä
- Asennuskalusteiden valmisteleminen, kuvat 1/2/3/4
- Laitteen asennus, kuvat 5/6
- Laitteen purkaminen
- Ważne wskazówki
- Przygotowanie mebli do montażu, rysunki 1/2/3/4
- Instalacja urządzenia, rysunki 5/6
- Demontaż urządzenia
- Önemli açıklamalar
- Montaj mobilyalarının hazırlanması, şekil 1/2/3/4
- Cihazın kurulumu, şekil 5/6
- Cihazı sökünüz
- Важные указания
- Подготовка мебели к установке варочной панели рисунки 1/2/3/4
- Установка варочной панели (рисунки 5/6)
- Демонтаж варочной панели

*9000340218* 9000340218 921121
Û Instrucciones de montaje
Ø Montageanleitung
Ú Installation instructions
Þ Notice de montage
â Istruzioni per il montaggio
é Installatievoorschrift
× Monteringsvejledning
ì Instruções de montagem
ê Monteringsveiledning
Ù Οδηγίες εγκατάστασης
ó Monteringsanvisning
Ý Asennusohje
ë Instrukcja montażu
ô Montaj kılavuzu
î Инструкция по монтажу
PLQ
PLQ
(
PLQ
5
$
%
$%
PLQ
PLQ
PLQ
PLQ
[
&
PLQ
PLQ
PLQ
PLQ
PLQ
PLQPD[ PLQPD[
PLQ
PLQ PLQ PLQ
(
PLQPLQ PLQ
PLQ
PD[
PLQ
PD[
DE F