Operating instructions
Table Of Contents

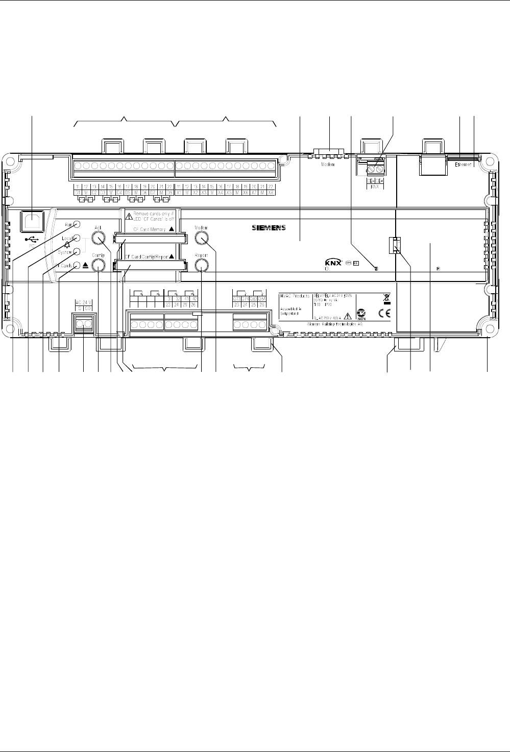
Mechanical design
Basic design
The central communication unit consists of the housing lower section with printed circuit
boards and connection terminals. The upper housing section contains the printed circuit
boards. The LEDs, operating buttons, interfaces, and slots for the CF cards (compact
flash memory cards) are integrated in the upper housing section. These elements and
the connection terminals are labeled on the front of the housing. The shape and dimen-
sions of the housing sections conform to DIN 43880 (size 2).
OZW775 OZW775
12
10
11 12 13 14 15
16
17
18
19
20 21
22 23 24 25 26 27
34567
8
9
5663Z01
11 12 21 22
Q
18 19 20 21
Q
QQ QQQQ
XX:XX:XX:XX:XX:XX
XXXXXXXXXXXX HEX
040601A001001
OZW775
Position Labeling Element
1 PC USB interface
2 D1...D8 M Connection terminal digital inputs (M = ground)
3 X1...X8 M Connection terminals universal inputs (M = ground)
4 Upper housing section
5 Modem RS-232 interface
6 KNX LED (green/red) Bus voltage, data exchange via KNX (green) / unit in addressing mode (red)
7 CE- CE+ KNX (Konnex) connection terminals
8 Ethernet Ethernet plug RJ45 on Ethernet card OZZ7E5 (order card separately)
9 XX:XX:XX:XX:XX:XX MAC address (Media Access Control address, 48 bits)
10 Run LED (green) Operating voltage applied (lit), communicating with ACS (flashing)
11 Local LED (red) Central unit faults or faults at fault inputs, or "Hours run for service reached"
12 System LED (red) Device faults in the KNX network
13 CF cards LED (green) CF card integrated (lit), CF card being integrated or removed (flashing)
14 G G0 Connection terminals for AC 24 V operating voltage
15 Config Button Integrate or remove CF card
16 Ack Button Acknowledgement of "Local" fault, fault relay "System"
17 CF card memory Slot for CF card (web server data)
18 CF Card Config/Report Slot for CF card (firmware update)
19 Q11,Q12 Q21,Q22
Q31,Q32 Q41,Q42
Connection terminals for 4 relays with NC contacts
20 Report Button For function, see “Button combinations“
21 Modem Button initializes modem, checks connection to the modem (short) / sends system report (long)
22 Q73,Q74 Q83,Q84 Connection terminals for 2 relays with NO contact
23 Lug for cable tie (cable strain relief)
24 Fastening spring to mount the central communication unit to a standard rail TH 35-7.5
25 Snap cover
26 Cover (can be opened without tools if Ethernet card OZZ7E5 needs to be inserted)
27 Lower housing section
5/18
Building Technologies Central communication unit OZW775 V3.0 CE1N5663en
HVAC Products 29.06.2009










