User Manual

10
Siemens
A6V11932500_en--_b
Smart Infrastructure
2020-08-12
Standards
Product safety
● Overvoltage category
EN60730 Section 2.7: Protection class I (with earthing)
Protection standard
IP 40 as per DIN40050
Electromagnetic compability (Applications)
For use in residential, commercial, light-industrial and
industrial environments
EU conformity (CE)
A5W00116547
Evironmental compability
The product environmental declaration (A5W00100558)
contains data on environmentally compatible product
design and assessments (RoHS compliance, materials
composition, packaging, environmental benefit,
disposal).
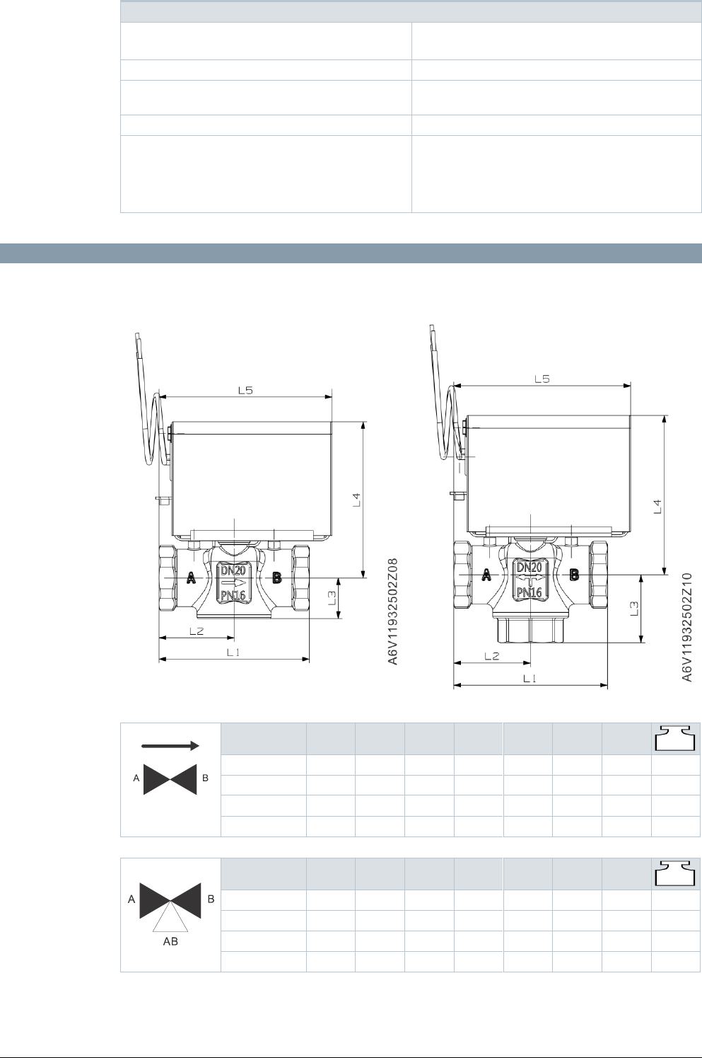
Dimensions
2-port valves
3-port valves
MVI422…
MXI422…
Valve type
DN
Rp
L1
L2
L3
L4
L5
kg
[inch]
[mm]
[mm]
[mm]
[mm]
[mm]
[kg]
MV422.15
15
Rp ½
70
35
21
80
86
0.657
MVI422.20
20
Rp ¾
78
39
21
80
90
0.675
MVI422.25
25
Rp 1
88
44
25
84
95
0.806
Valve type
DN
Rp
L1
L2
L3
L4
L5
kg
[inch]
[mm]
[mm]
[mm]
[mm]
[mm]
[kg]
MXI422.15
15
Rp ½
70
35
35
80
86
0.685
MXI422.20
20
Rp ¾
78
39
35
80
90
0.711
MXI422.25
25
Rp 1
88
44
43
84
95
0.881