Operation Manual
Table Of Contents
- Inleiding
- Voorbereidingen
- Benaming en functies van de onderdelen
- Snelstartgids
- Automatische installatie bij eerste gebruik
- TV kijken
- Aansluiten van externe apparaten
- AQUOS LINK
- Basisinstelling
- Handige weergavefuncties
- Andere handige functies
- Aansluiten van een PC
- Netwerkinstellingen
- Net TV
- Aanhangsel
- Problemen oplossen
- Updaten van de TV via DVB-T/T2*1/C/S*2/S2*2
- Ophalen van update-informatie
- Informatie over de softwarelicentie voor dit product
- Updaten van de TV via USB/netwerk
- Handelsmerken
- Softwarelicenties voor Net TV
- Disclaimers voor services die internet gebruiken
- Technische gegevens
- Technische gegevens (draadloze LAN USB-adapter)
- Energiespecificaties
- Bevestigen van de TV aan de muur
- Specificaties voor wandbevestigingskits
- Maattekeningen
- EU-energielabel voor televisies

70
Aanhangsel
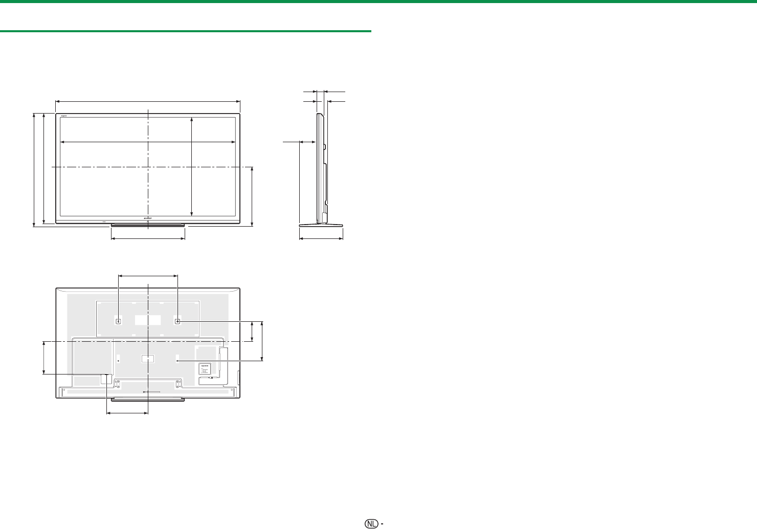
Maattekeningen
(737) (434)
(996.30)
*1
(996,30)
*1
(1771.20)
*1
(1771,20)
*1
(1862)
(1145)
(1112)
(609)
(400)
(200)
(600)
(336)
(421)
(179)
(63)
*2
(99)
LC-80LE645E
LC-80LE645RU
LC-80LE646E
LC-80LE646S
I Actief gebied
J Dunste gedeelte (behalve hoogte van aansluitingen)
OPMERKING
• In de afmetingen zijn geen uitsteeksels zoals schroeven en sommige andere onderdelen
opgenomen.










