How to Guide

Sales & Specifications Sheet • Issue Date December 2015  
www.sharkbite.com · 2727 Paces Ferry Road · Building 2 · Suite 1800 · Atlanta · Georgia 30339 · USA  
US Contact: 1-877-700-4242 · customerservice@sharkbite.com · Canadian Contact: 1-888-820-0120 · canadasales@rwc.com 
A Division of Reliance Worldwide Corporation 
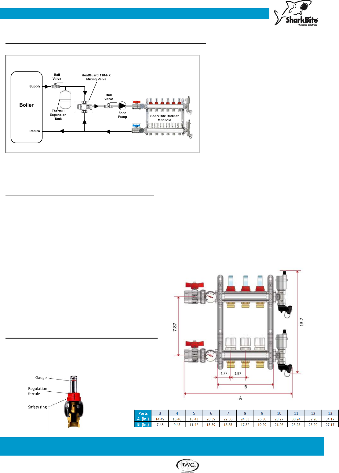
TYPICAL INSTALLATION   
Closed-loop boiler application*. 
*Please note that specific installation requirements will vary per system. Some components 
may have been removed for simplicity. 
SPECIFICATION DATA_________________ 
Performance: 
Maximum operating temperature  .................. 158°F (70°C) 
Flow meter precision .................................... +/- 10% 
Maximum operating pressure ....................... 87 psi (6 bar) 
Flow rate, minimum ...................................... 0.34 gpm (1.3 l/min) 
Flow rate, maximum ..................................... 11 gpm (42 l/min) 
Maximum Area (room size)* ......................... approx. 665 ft
2
Materials: 
Flow and return manifolds ............................ 304L Stainless Steel 
Ball Valves .................................................... Nickel-Plated Brass 
Air Vent and Drain ......................................... Nickel-Plated Brass 
Brackets ........................................................ Zinc-plated steel 
Seals ............................................................ EPDM 
Piston  ........................................................... Engineered Polymer 
Guide tube .................................................... Noryl GFN2 
*Max. Area estimated at total load 35 BTUh/ft2, setpoint 70°F (21°C), max. surface 87.5°F (30.8°C), 
supply/return differential 10°F (5.6°C), 30% glycol, loops: 6, total length 200’ (61m) max. each  
(active length 165’ (50.3m) each), installed 8" (20.3cm) on-center. Actual conditions will vary based 
on room size. 
CONNECTIONS________________________ 
Inlet FNPT ..................................................... 1” 
SharkBite® Outlet .......................................... ½” 
Flow Meter 


