How to Guide

Sales & Specifications Sheet • Issue Date December 2015
www.sharkbite.com · 2727 Paces Ferry Road · Building 2 · Suite 1800 · Atlanta · Georgia 30339 · USA
US Contact: 1-877-700-4242 · customerservice@sharkbite.com · Canadian Contact: 1-888-820-0120 · canadasales@rwc.com
A Division of Reliance Worldwide Corporation
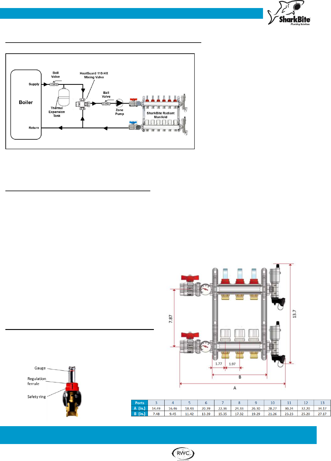
TYPICAL INSTALLATION
Closed-loop boiler application*.
*Please note that specific installation requirements will vary per system. Some components
may have been removed for simplicity.
SPECIFICATION DATA_________________
Performance:
Maximum operating temperature .................. 158°F (70°C)
Flow meter precision .................................... +/- 10%
Maximum operating pressure ....................... 87 psi (6 bar)
Flow rate, minimum ...................................... 0.34 gpm (1.3 l/min)
Flow rate, maximum ..................................... 11 gpm (42 l/min)
Maximum Area (room size)* ......................... approx. 665 ft
2
Materials:
Flow and return manifolds ............................ 304L Stainless Steel
Ball Valves .................................................... Nickel-Plated Brass
Air Vent and Drain ......................................... Nickel-Plated Brass
Brackets ........................................................ Zinc-plated steel
Seals ............................................................ EPDM
Piston ........................................................... Engineered Polymer
Guide tube .................................................... Noryl GFN2
*Max. Area estimated at total load 35 BTUh/ft2, setpoint 70°F (21°C), max. surface 87.5°F (30.8°C),
supply/return differential 10°F (5.6°C), 30% glycol, loops: 6, total length 200’ (61m) max. each
(active length 165’ (50.3m) each), installed 8" (20.3cm) on-center. Actual conditions will vary based
on room size.
CONNECTIONS________________________
Inlet FNPT ..................................................... 1”
SharkBite® Outlet .......................................... ½”
Flow Meter


