Installation Guide

Ft. In.
4 3/4
7 3/4
10 3/4
1 1/2
1 4 3/4
1 6 1/2
1 10 3/4
1 11 1/4
2 10 3/4
2 11 1/4
3 3 1/2
3 6 1/2
3 9 1/2
3 10 3/4
4 2 1/4
4 3 1/2
4 3 1/2
4 6 1/2
4 9 1/2
5 3 1/2
5 9 1/2
5 9 1/2
6 9 1/2
7 2 1/4
7 8 1/4
7 8 1/4
7 9 1/2
8 8 1/4
9 2 1/4
Total
Inches
4 3/4
7 3/4
10 3/4
12 1/2
16 3/4
18 1/2
22 3/4
23 1/4
34 3/4
35 1/4
39 1/2
42 1/2
45 1/2
46 3/4
50 1/4
51 1/2
51 1/2
54 1/2
57 1/2
63 1/2
69 1/2
69 1/2
81 1/2
86 1/4
92 1/4
92 1/4
93 1/2
104 1/4
110 1/4
Pipe Length
Installed Height
NUMBER OF CHIMNEY PIPE SECTIONS
6 9 12 18 24 36 48
46342216
3
4
1074
1
1
1
1
1
1
11
1
111
1
1
1
1
1
1
1
1
1
1
1
1
1
1
1
1
1
1
1
1
1
1
1
1
11
1
1
2
2
2
2
2
2
2
1
1
1
1
1
1
1
6
6
6
6
1
51
5
1
5
1
1
4
1
1
4
1
1
1
1
3
1
1
1
4 7 10 16 22 34 46
483624181296
NUMBER OF CHIMNEY PIPE SECTIONS
Installed Height
Pipe Length
315 1/4
303 1/4
280 1/2
231 1/4
208 1/2
268 1/2
256 1/2
233 3/4
196 1/2
173 3/4
221 3/4
209 3/4
203 3/4
187
161 3/4
155 3/4
139
175
163
157
151
140 1/4
127
121
115
128 1/4
116 1/4
Inches
Total
26 3 1/4
25 3 1/4
23 4 1/2
19 3 1/4
17 4 1/2
22 4 1/2
21 4 1/2
19 5 3/4
16 4 1/2
14 5 3/4
18 5 3/4
17 5 3/4
16 11 3/4
15 7
13 5 3/4
12 11 3/4
11 7
14 7
13 7
13 1
12 7
11 8 1/4
10 7
10 1
9 8 1/4
Ft. In.
10 8 1/4
9 7
2
2
3
1
3
3
3
1
3
3
3
4
4
4
4
4
1
5
5
6
1
4
3
4
3
4
3
4
3
4
3
4
33
44
3
4
3
4
3
4
3
4
3
4
3
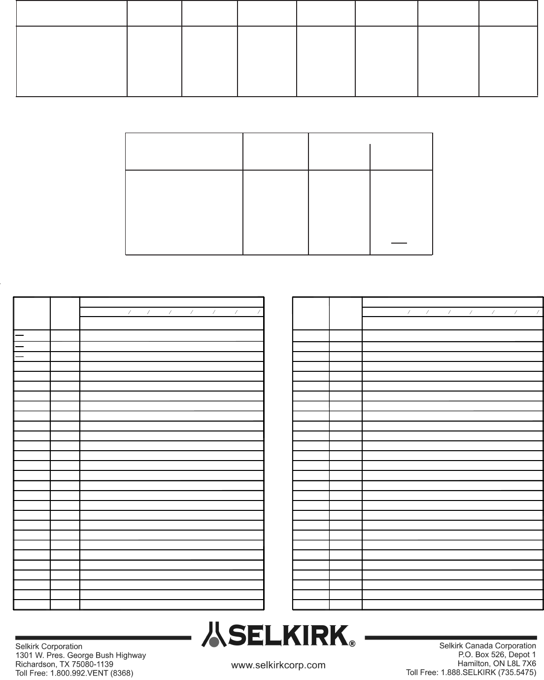
CHIMNEY PIPE LENGTH SELECTOR CHART
0015110-0709
CHIMNEY SIZE: (Inside Diam.)
5”
TYPE HT
6”
TYPE HT
7”
TYPE HT
8”
TYPE HT
10”
12”
14”
CEILING OR FINISH SUPPORT *
CEILING PENETRATIONS *
FLOOR OPENINGS *
ROOF OPENINGS *
WALL OPENINGS *
11-1/4”X11-1/4”
12-1/4”X12-1/4” 13-1/4”X13-1/4”
14-1/4”X14-1/4”
16-1/4”X16-1/4”
18-1/4”X18-1/4”
20-1/4”X20-1/4”
11” X 11”
12” X 12”
13” X 13”
14” X 14”
16” X 16”
18” X 18”
20” X 20”
FRAMING DIMENSIONS FOR METALBEST CHIMNEY SYSTEMS
TO MAINTAIN 2 INCH AIR SPACE CLEARANCE
* All framing dimensions may be up to 1/2” more, but not less than the above values. Check support dimensions before using.
NOTE: (A) 20 feet of chimney may be suspended below a roof support with all
joints securely threaded, using locking bands or screws
SUPPORT TYPE PART NO.
FEET OF
CHIMNEY
FEET OF
CHIMNEY
SIZE
5”, 6”, 7”, 8”
10”, 12”, 14”
ANCHOR PLATE
FINISH OR CEILING SUPPORT
INSULATED TEE
WALL SUPPORT KIT
ROOF SUPPORT (A)
INTERIOR RESUPPORT
SUPPORT BOX
AP
FSP, CSP
IT
WSK
RSP
IR
SB
85
50
50
See Sheet S-5
30
18
20
85
50
40
40
30
18
MAXIMUM HEIGHT (OR LENGTH) OF CHIMNEY FOR SUPPORTS