User`s manual
Table Of Contents
- Table of Contents
- Product Description: Page 2
- Cabinet Dimensions Page 3
- Location Recommendations: Page 4
- Decorating Features: Page 5
- Door Panel Attachment Page 6
- Door Swing Page 7
- Plumbing - Pump Model Page 8
- Plumbing: Gravity Drain Model Page 9
- Electrical and Start Up Page 10
- Use Page 11
- Maintenance Page 12
- How to remove scale from the ice making system. Page 13
- What to do before calling for service Page 16

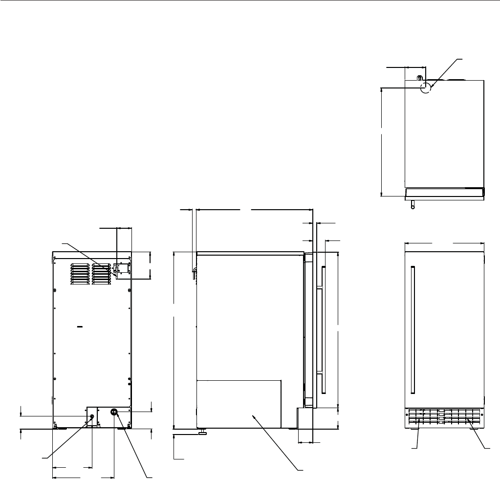
Cabinet Dimensions
May 2011
Page 3
SCN60
User's Manual
14 7/8"
AIR IN
AIR OUT
3/4"
SHEET METAL DOOR FRONT - IF DOOR KIT INSTALLED
.63 MIN. CABINET DOOR
22"
29 1/4"
1"
LEG ADJUSTMENT
(4) PLACES
2 3/4"
2 3/8"
DOOR KIT
AND HANDLE
3/4"
4"
33 3/8" MIN.
34 3/8" MAX.
LEFT SIDE SVC.
ACCESS PANEL
2 1/2"
7 1/2"
3 1/4"
2 3/4"
5 1/8"
11 5/8"
115V
POWER CORD
DRAIN ACCESS - FLEXIBLE TUBING
3/8" I.D. PUMP MODEL (INCLUDED)
5/8" I.D. GRAVITY MODEL (NOT INCLUDED)
1/4" O.D. COPPER
WATER INLET
COMPRESSION
FITTING PROVIDED
3 7/8"
20 3/8"
FLOOR DRAIN
ACCESS HOLE
Scotsman Ice Systems are designed and manufactured with the highest regard for safety and
performance. They meet or exceed the standards of agencies like ETL.
Scotsman assumes no liability or responsibility of any kind for products manufactured by Scotsman that
have been altered in any way, including the use of any parts and/or other components not specifically
approved by Scotsman.
Scotsman reserves the right to make design changes and/or improvements at any time. Specifications
and designs are subject to change without notice.










