Service manual
Table Of Contents
- Table of Contents
- Product Description: Page 2
- Cabinet Dimensions Page 3
- Location Recommendations: Page 4
- Familiarization Page 5
- Decorating Features: Page 6
- Door Panel Attachment Page 7
- Door Swing Page 8
- Plumbing - Pump Model Page 9
- Plumbing: Gravity Drain Model Page 10
- Electrical and Start Up Page 11
- Use Page 12
- Maintenance Page 13
- How to remove scale from the ice making system. Page 14
- Service Table of Contents
- SCN60 service Page 1
- Components: Page 2
- Evaporator and Auger Page 3
- Control System Page 4
- Water System Page 5
- Storage Page 6
- Performance and Technical Specs Page 7
- Electrical Sequence Page 8
- Service Diagnosis Page 9
- Service Diagnosis Page 10
- Component Diagnostics Page 11
- Ice Capacity Page 12
- Removal and Replacement Page 13
- SCN60 Gearbox Access & Removal Page 14
- Water Seal Replacement Page 16
- Evaporator Replacement Page 18
- Drain Pump (if equipped) Page 19
- Compressor replacement. Page 20
- Bin and Cabinet Page 21
- Table of Contents

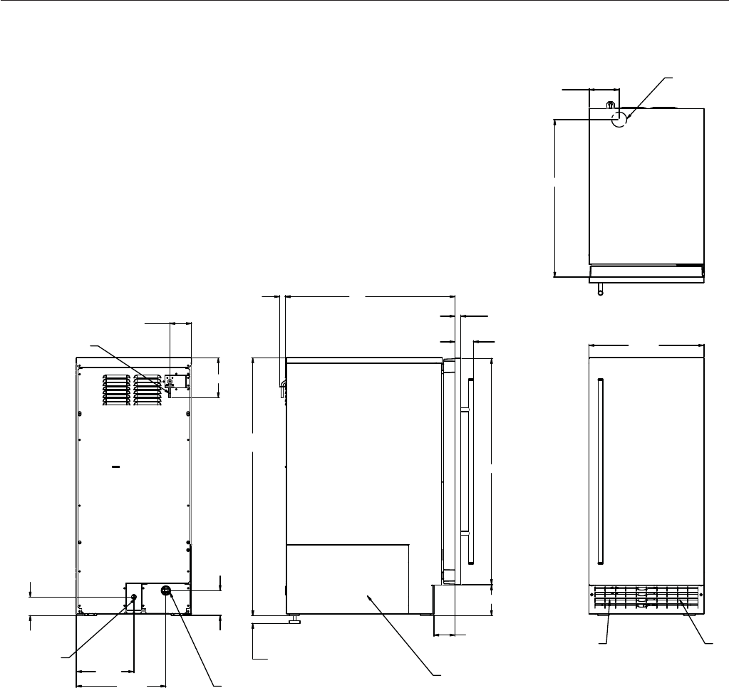
Cabinet Dimensions
May 2011
Page 3
SCN60
Installation and Use
Scotsman Ice Systems are designed and manufactured with the highest regard for safety and
performance. They meet or exceed the standards of agencies like ETL.
Scotsman assumes no liability or responsibility of any kind for products manufactured by Scotsman that
have been altered in any way, including the use of any parts and/or other components not specifically
approved by Scotsman.
Scotsman reserves the right to make design changes and/or improvements at any time. Specifications
and designs are subject to change without notice.
14 7/8"
AIR IN
AIR OUT
3/4"
SHEET METAL DOOR FRONT - IF DOOR KIT INSTALLED
.63 MIN. CABINET DOOR
22"
29 1/4"
1"
LEG ADJUSTMENT
(4) PLACES
2 3/4"
2 3/8"
DOOR KIT
AND HANDLE
3/4"
4"
33 3/8" MIN.
34 3/8" MAX.
LEFT SIDE SVC.
ACCESS PANEL
2 1/2"
7 1/2"
3 1/4"
2 3/4"
5 1/8"
11 5/8"
115V
POWER CORD
DRAIN ACCESS - FLEXIBLE TUBING
3/8" I.D. PUMP MODEL (INCLUDED)
5/8" I.D. GRAVITY MODEL (NOT INCLUDED)
1/4" O.D. COPPER
WATER INLET
COMPRESSION
FITTING PROVIDED
3 7/8"
20 3/8"
FLOOR DRAIN
ACCESS HOLE










