User Guide

N0422, F0522, N0622, F0822, N0922, F1222, N1322, F1522
Air, Water or Remote Service Manual
December 2014
Page 7
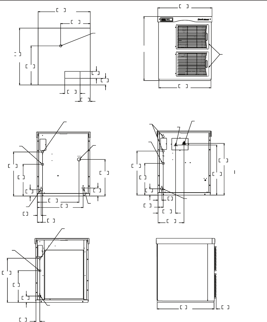
N0922, F1222, N1322, F1522 Cabinet Layout
24.00
REF.
61
22.00 REF.
55.9
2.92
7.4
6.48
16.5
2.81
7.1
4.30
10.9
16.50
41.9
12.50
31.8
PLAN VIEW
ICE DROP
OPENING
24.00
61
.92
2.3
LEFT SIDE VIEW
13.39
34
1.62
4.1
2.67
6.8
18.64
47.3
AIR COOLED
BACK VIEW
3/8" FLARE
MACHINE
WATER
INLET
.88 DIA.
ELECTRICAL
ACCESS
3/4" FPT
DRAIN
13.39
34
2.17
5.5
2.67
6.8
18.59
47.2
1.59
4
19.30
49
17.55
44.6
3.37
8.6
15.44
39.2
WATER COOLED
BACK VIEW
.88 DIA.
ELECTRICAL
ACCESS
3/8" FLARE
MACHINE
WATER
INLET
3/4" FPT
DRAIN
1/2" FPT
CONDENSER
DRAIN
13.39
34
2.67
6.8
18.59
47.2
1.59
4
2.17
5.5
7.39
18.8
10.93
27.8
21.14
53.7
21.84
55.5
REMOTE COOLED
BACK VIEW
.88 DIA.
ELECTRICAL
ACCESS
3/8" FLARE
MACHINE
WATER
INLET
3/4" FPT
DRAIN
3/8" FPT
CONDENSER
WATER INLET
REMOTE COND.
LIQUID LINE
3/8" CPLG
REMOTE COND.
DISCHARGE LINE
1/2" CPLG
ULTRA SONIC
BIN LEVEL
SENSOR
OPTIONAL
27.00
[68.6]
22.00
55.9
22.89
58.1
FRONT VIEW
LOUVER AND
REMOVABLE FILTER
A/C UNITS ONLY










