Use and Care

N0422, F0522, N0622, F0822, N0922, F1222, N1322, F1522
Air, Water or Remote Service Manual
December 2014
Page 6
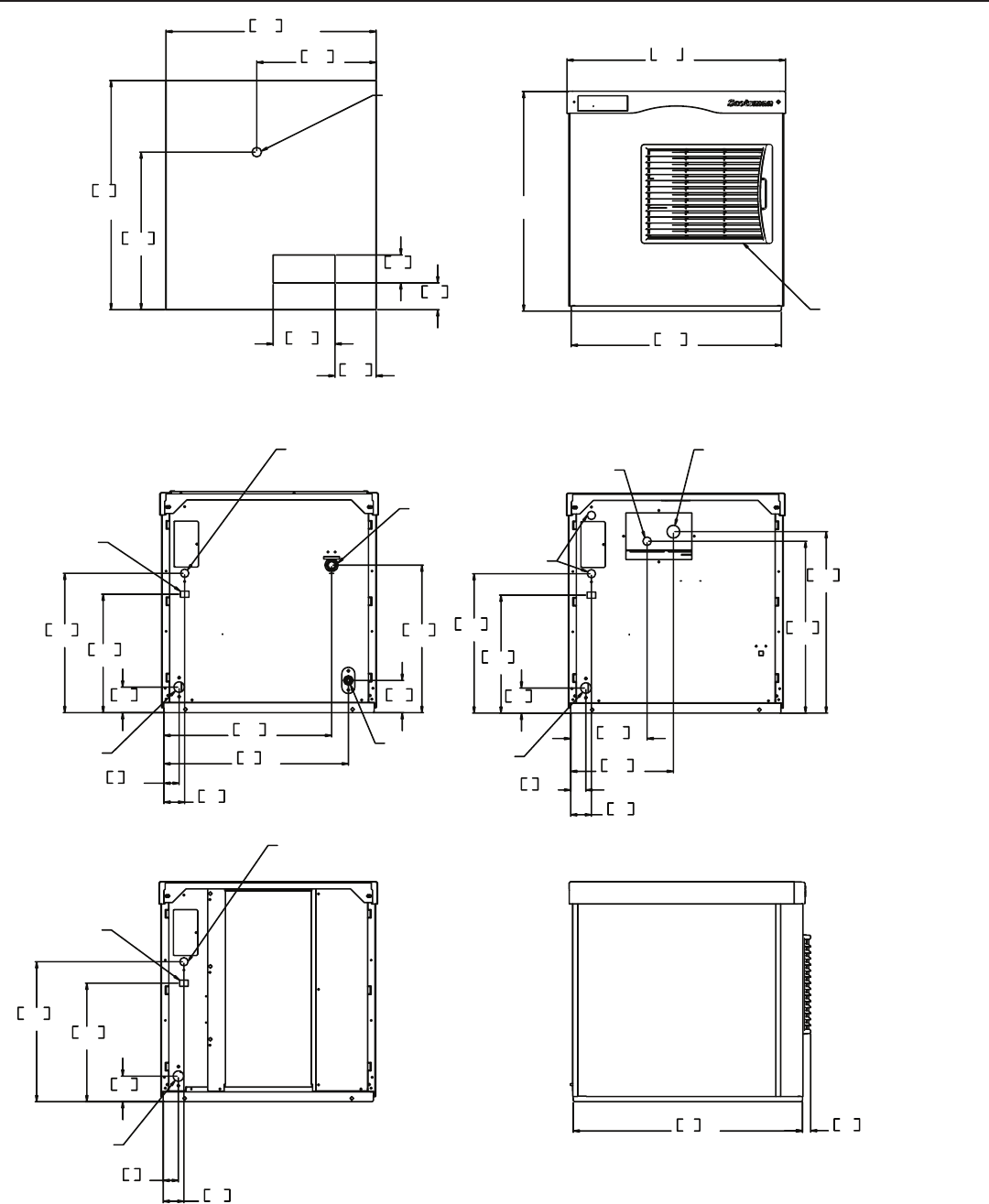
N0422, F0522, N0622, F0822 Cabinet Layout
12.40
31.5
2.68
6.8
1.59
4
14.65
37.2
2.17
5.5
AIR COOLED
BACK VIEW
3/4" FPT
DRAIN
.88 DIA.
ELECTRICAL
ACCESS
3/8" FLARE
MACHINE
WATER
INLET
12.40
31.5
2.17
5.5
1.59
4
2.68
6.8
14.60
37.1
19.31
49
17.55
44.6
3.38
8.6
15.45
39.2
WATER COOLED
BACK VIEW
3/8" FLARE
MACHINE
WATER
INLET
3/4" FPT
DRAIN
.88 DIA.
ELECTRICAL
CONNECTION
3/8" FPT
CONDENSER
WATER
INLET
1/2" FPT
CONDENSER
DRAIN
12.35
31.4
19.00
48.3
18.00
45.7
8.00
20.3
10.75
27.3
2.63
6.7
1.59
4
14.60
37.1
2.17
5.5
REMOTE COOLED
BACK VIEW
REMOTE COND.
LIQUID LINE
3/8" MALE CPLG.
REMOTE COND.
DISCHARGE LINE
1/2" MALE CPLG.
.88 DIA.
ELECTRICAL
CONNECTION
3/4" FPT
DRAIN
24.00
REF.
61
22.00 REF.
55.9
2.92
7.4
6.48
16.5
2.81
7.1
4.30
10.9
16.50
41.9
12.50
31.8
ICE DROP
OPENING
PLAN VIEW
ULTRA SONIC
BIN LEVEL
SENSOR
OPTIONAL
22.00
55.9
23.00
[58.5]
22.89
58.1
LOUVER AND
REMOVABLE FILTER
A/C UNITS ONLY
24.00
61
.85
2.2
LEFT SIDE VIEW