User Manual

Chapter 2 Installation
EM13x Series SMART MULTIFUNCTION METER 33
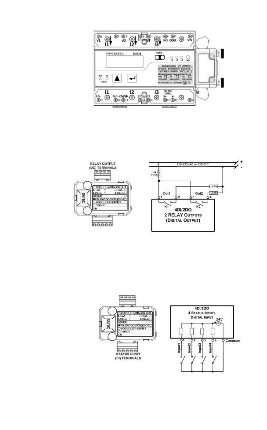
4DI/2RO Module
Figure 2-24 4DI/2RO Module Assembly
Relay Outputs
There are two relay outputs provided for energy pulsing, alarms, or
remote control.
Figure 2-25 Relay Output Connection
Digital Inputs
Four optically isolated status inputs are provided for status monitoring,
pulse counting, external power demand period, and time
synchronization.
Figure 2-26 Digital Input Connection