User Manual
Manuals
Brands
SATEC Manuals
Equipment
EM132-133 Manual
21
22
23
24
25
26
27
28
29
30
Chapter 2
Installation
30
EM13x Series SMART MULTIFUNCTION METER
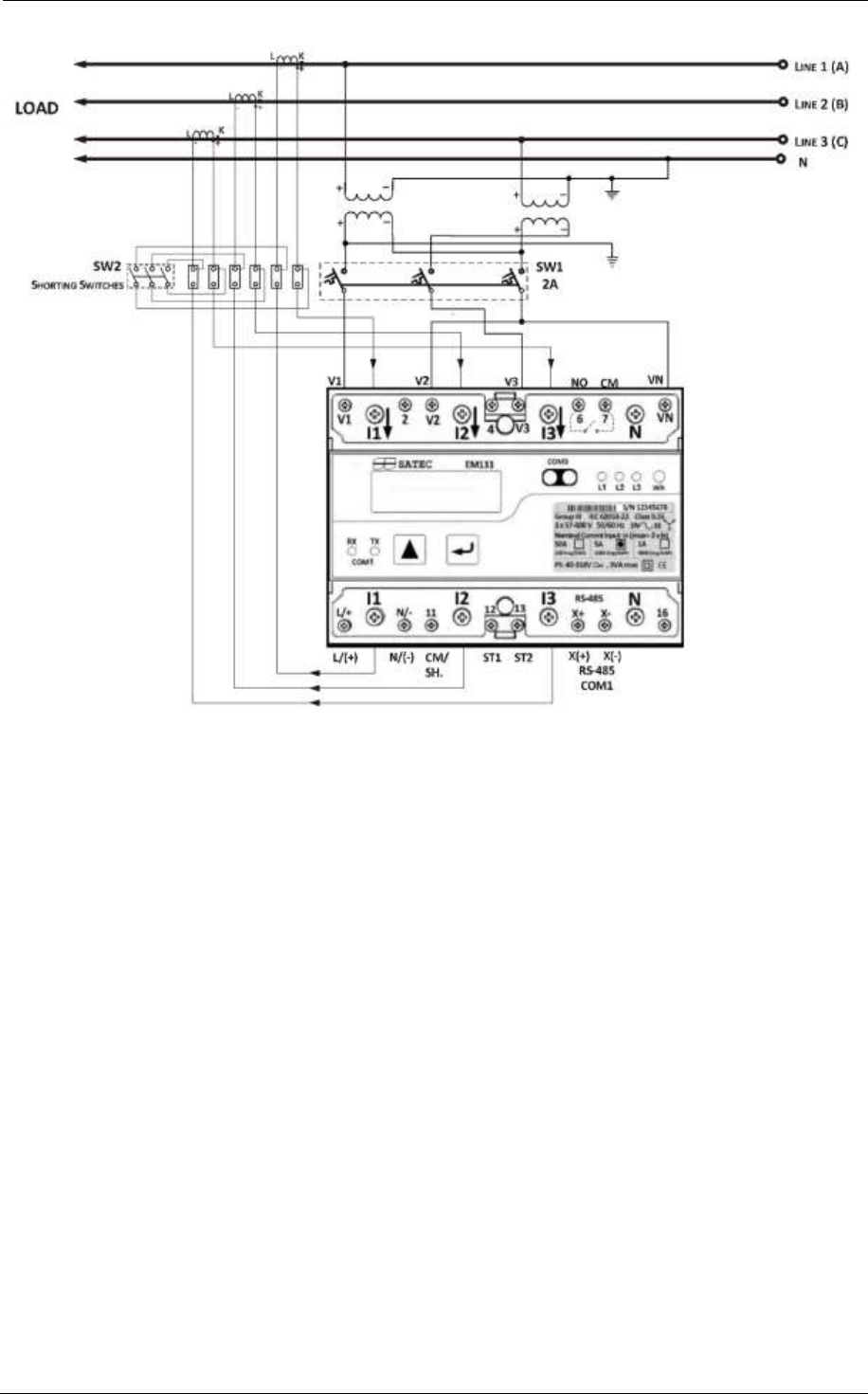
F
i
g
u
r
e
2
-
20
3
-
W
i
r
e
2
½
-
E
l
e
m
e
n
t
B
r
o
k
e
n
D
e
l
t
a
C
o
n
n
e
c
t
i
o
n
U
s
i
n
g
2
P
T
s
,
3
C
T
s
(
W
i
r
i
n
g
M
o
d
e
=
3
b
L
n
3
o
r
3
b
L
L
3
)
1
...
...
28
29
30
31
32
...
...
152