User Manual

Chapter 2 Installation
28 EM13x Series SMART MULTIFUNCTION METER
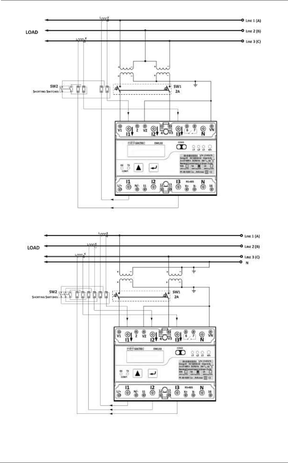
Figure 2-16 3-Wire 2-Element Open Delta Connection Using 2 PTs, 2 CTs (Wiring Mode = 3OP2)
This configuration provides accurate power measurements only if the voltages are balanced.
Figure 2-17 4-Wire Wye 2½-Element Connection Using 2 PTs, 3 CTs (Wiring Mode = 3LL3 or 3Ln3)