User Manual

Chapter 2 Installation
26 EM13x Series SMART MULTIFUNCTION METER
Wiring Diagrams
For AC input ratings, see Technical Specifications in Appendix A for
more details.
Table 2 presents the available wiring configurations in the meter.
Table 2: Wiring Configurations
Wiring Configuration
Setup Code
Figure
3-wire 2-element Delta direct connection using 2 CTs
3dir2
2-11
4-wire 3-element Wye direct connection using 3 CTs
4Ln3 or 4LL3
2-12
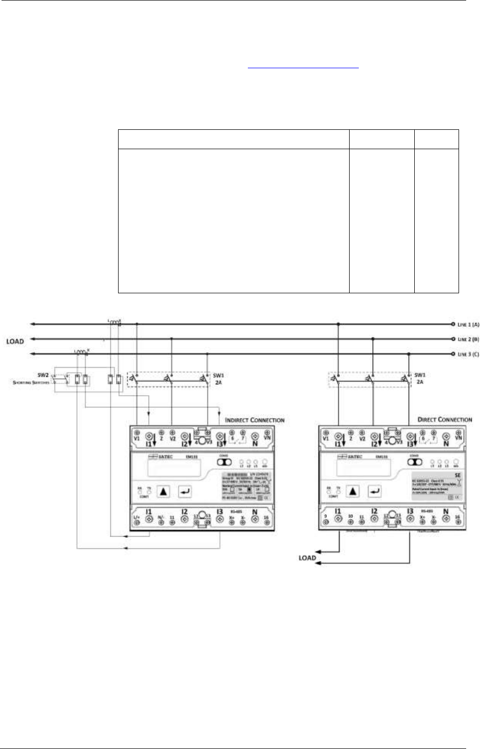
4-wire 3-element Wye connection using 3 PTs, 3 CTs
4Ln3 or 4LL3
2-13
3-wire 2-element Open Delta connection using 2 PTs,
2 CTs
3OP2
2-14
4-wire 2½-element Wye connection using 2 PTs, 3
CTs
3Ln3 or 3LL3
2-15
3-wire 2½-element Open Delta connection using 2
PTs, 3 CTs
3OP3
2-16
4-wire 3-element Delta direct connection using 3 CTs
4Ln3 or 4LL3
2-17
3-wire 2½-element Broken Delta connection using 2
PTs, 3 CTs
3bLn3 or
3bLL3
2-18
Figure 2-13 3-Wire 2-Element Delta Direct Connection Using 2 CTs (Wiring Mode = 3dir2)