User Manual

Chapter 2 Installation
24 EM13x Series SMART MULTIFUNCTION METER
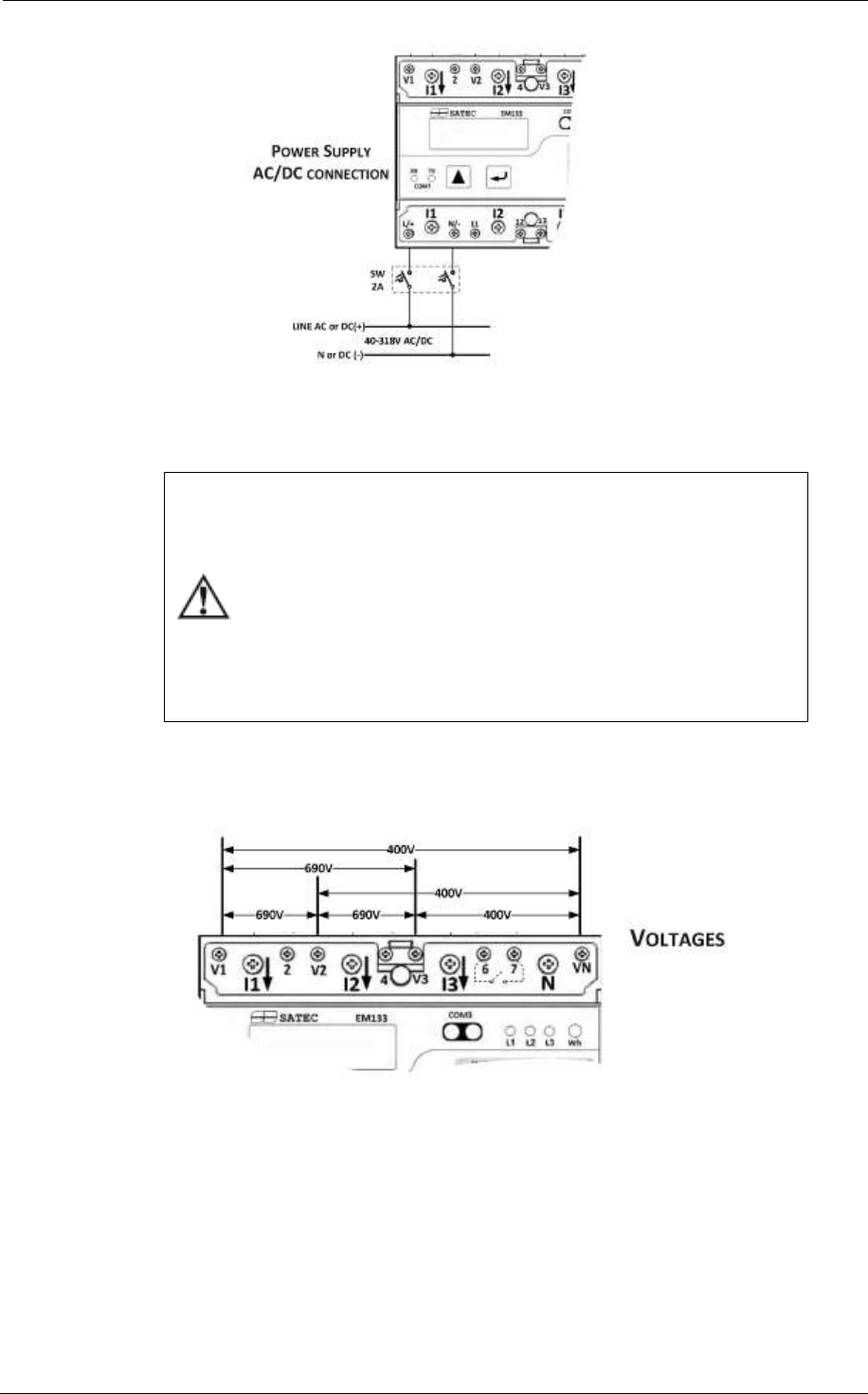
Figure 2-9 EM13X Series Auxiliary Power Supply connection
Voltage Input connection
The equipment installation shall conform to the following
instructions:
a) a switch or circuit-breaker shall be included in the building
installation;
b) It shall be in close proximity to the equipment and within
easy reach of the OPERATOR;
c) It shall be marked as the disconnecting device for the
equipment.
Before installing, ensure that all incoming power sources are
shut OFF. Failure to observe this practice can result in serious
or even fatal injury and damage to equipment.
EM13x Series (with Aux. Power Supply) 690V Inputs
(Standard)
Figure 2-10a EM13X Series (with Aux. Power Supply) measured Voltage connections
690V inputs are usually used with direct connection. Use any of the
seven wiring configurations shown in Figures 2-8 through 2-15.