Fridge/Freezer Instruction Manual
Table Of Contents
- Safety Precautions
- Main Features
- Model Specifications
- Choosing Where to Install Your Fridge/Freezer
- Earthing the Fridge/Freezer
- Preparing Your Fridge/Freezer for Use
- Preparing Your Fridge/Freezer for UseOnce you have chosen the position of your fridge/freezer andchecked that the wall outlet is correctly earthed, proceed asfollows.1 Make sure that the fridge/freezer is unplugged from the wall outlet.2 Wipe the appliance clean inside and out with a soft cloth andwarm, soapy water.3 Allow the fridge/freezer to stabilize for at least one hour beforeplugging it in for the first time.4 Plug the power cord into the appropriate earthed wall outlet.5 Set the refrigerator and freezer temperatures, referring to pages 8and 10, respectively for further instructions.6 Wait for 2-3 hours for the freezer to reach the required temperature,before placing frozen food in the freezer.Adjusting the Feet
- Arranging the Accessories
- Controlling the Refrigerator Temperature
- Storing Food
- Using the Chiller Compartment
- Using the Multi-Purpose Drawer
- Using the Vegetable Bin
- Controlling the Freezer Temperature
- Freezing Food
- Making Ice Cubes (OPTION)
- Cleaning the Fridge/Freezer
- Changing the Light Bulb
- Problems and Solutions
- View of Your Fridge/Freezer

5
Various factors must be taken into account when choosing where to install your fridge/freezer.
For the personal safety of you and your family, your fridge/freezer
must be:
◆ Plugged into its own individual wall outlet with the
correct voltage and frequency, as indicated inside the
refrigerator door
◆ Properly earthed (do not ground the fridge/freezer with a
telephone line, gas pipe, and so on)
To minimise the possibility of electric shocks from the appliance, the
wall outlet must also be earthed; have it checked by a qualified
electrician. If it is not earthed, it is your personal responsibility and
obligation to have it replaced with a properly earthed outlet, or use a
different power point.
If the power cord is damaged, avoid a hazard by
replacing it through the manufacturer or its service
agent or a similarly qualified person.
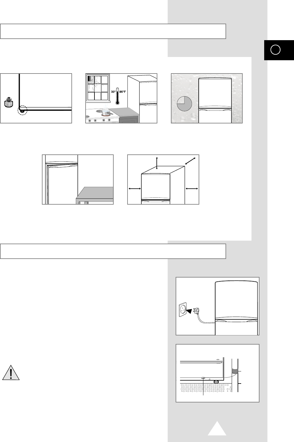
In case of power plug without ground terminal.
◆ Connect one side of the ground wire (yellow/green
or green color) with the ground screw, another side
of the ground terminal with steel or copper pipe such
as water pipe tap.
EN
Choosing Where to Install Your Fridge/Freezer
Earthing the Fridge/Freezer
Install the fridge/freezer on a
stable, flat surface. Adjust the
feet if necessary, referring to
page 6 for further details.
Avoid locations in direct sunlight or
near to heaters, radiators, ovens or
cookers.
Avoid locations affected by
draughts or dampness.
Make sure that you can open the
doors freely and without hin-
drance.
Allow the following clearances
around the fridge/freezer:
◆
50 mm (2 inches) on all sides
◆ 300 mm (12 inches) above
the fridge/freezer
300 mm 12”
50 mm
2”
50 mm
2”
50 mm
2”
H
75%
Ground
cable
Copper
pipe
Ground screw
DA99-00478-EN 2004.3.3 2:39 PM 페이지5










