Specification
Manuals
Brands
SABA Manuals
Appliances
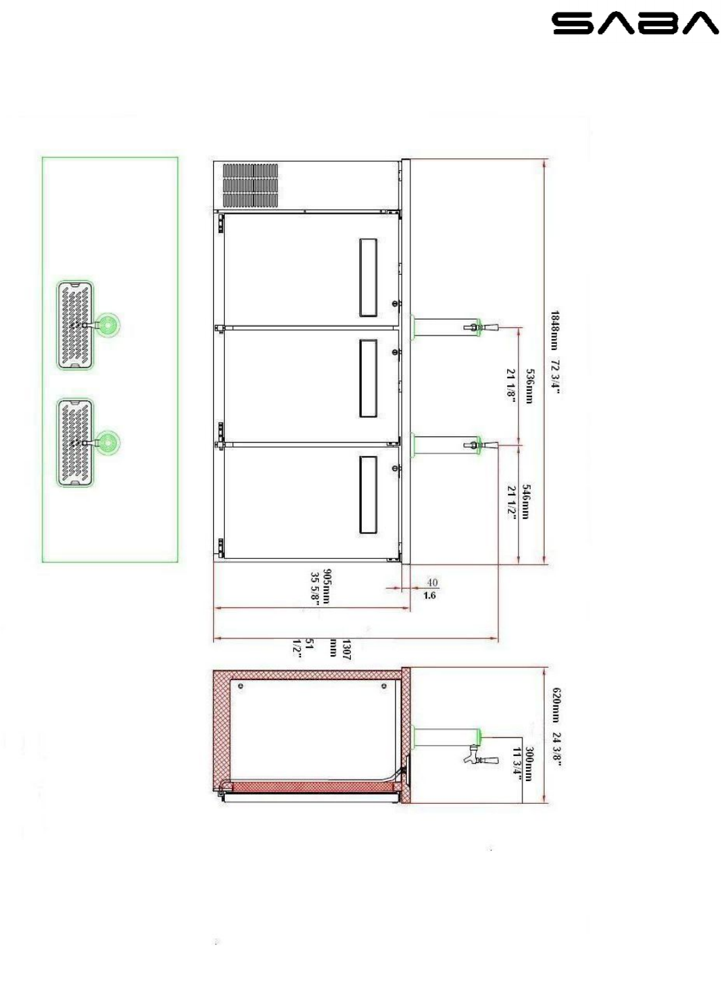
Three 1/2 Barrel Beer Keg Dispenser with 2 Double Tap Towers
1
2
SDD-24-72
Plan Vie
w
1
2