Installation Manual

Área #1 + Área #2 = Total de Pies Cuadrados
Sume la cantidad de pies cuadrados del Área #1 a la cantidad de pies
cuadrados del Área #2 para calcular la cantidad total de pies cuadrados.
Cantidad de Pies Cuadrados de Mi Área # 1 ________+ Pies Cuadrados de Mi
Área #2_________= ________Total de Pies Cuadrados.
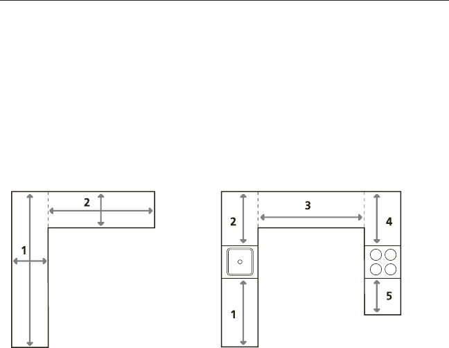
CÓMO EFECTUAR LA MEDIDA – EN PIES LINEALES
Antes de empezar su proyecto use las instrucciones que se encuentran más
abajo. Vea la ilustración (B) más abajo.
Calcule la cantidad de pies lineales midiendo el largo de sus
encimeras*. Divida la superficie de sus encimeras en secciones
y siga los siguientes pasos
PASO 1: Mida el largo de todas las secciones de las encimeras.
PASO 2: Sume todas las secciones juntas para calcular la cantidad
de pies cuadrados.
*Distancia estándar del ancho de una encimera es de 24”
Ilustración (A)
Pies Cuadrados
Ilustración (B)
Pies Lineales










