International Flat Panel Television User's Manual
Table Of Contents
- THREE YEAR LIMITED WARRANTY
- Safety Precautions
- 1. Introduction
- 2. Controls and Functions
- 3. Installation
- 3.1 Remote Control
- 3.2 Quick Setup
- 3.3 Installation Considerations
- 3.4 Connections to the PlasmaWall and DHD Controller
- 4. Operation
- 4.1 Turning on the Power
- 4.2 Selecting the Input Source
- 4.3 Setting the Computer Display Properties
- 4.4 Using the On-Screen Menus
- 5. Maintenance and Troubleshooting
- 6. Serial Communications
- 7. Specifications
- Appendix A. PlasmaWall Service Remote Control

Specifications
PlasmaWall SP Series Owner’s Operating Manual 61
PRE
L
IMINAR
Y
7.3
PlasmaWall
Dimensions
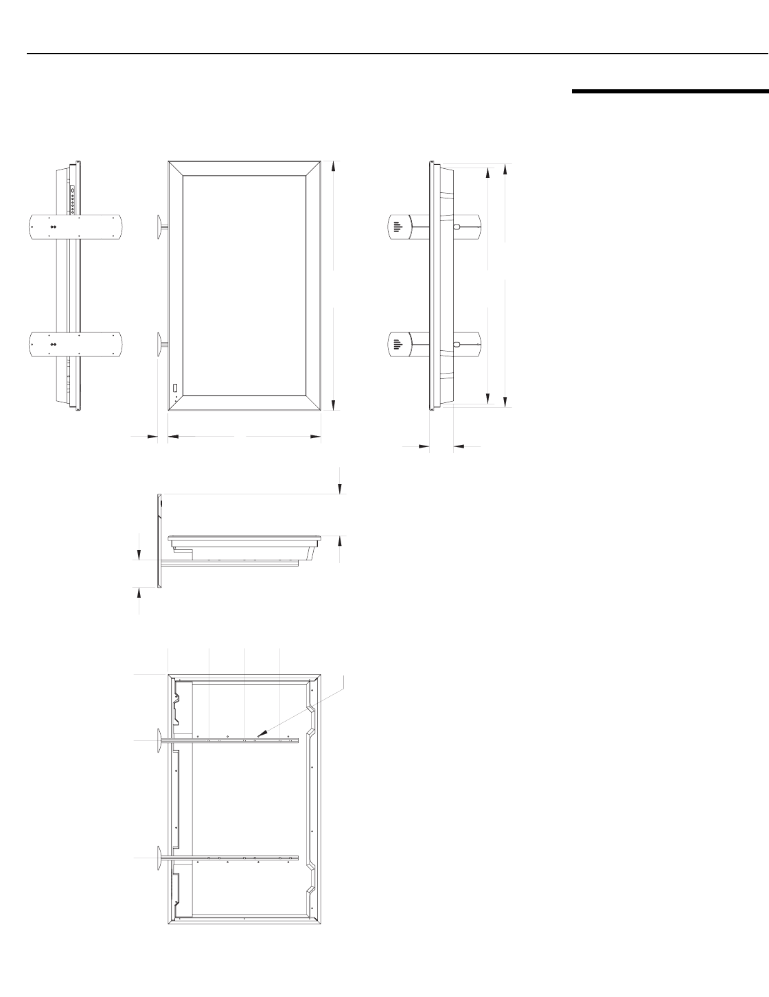
Figure 7-1, Figure 7-2 and Figure 7-3 show the PlasmaWall dimensions (all dimensions
are in inches).
Figure 7-1. PlasmaWall Model SP-42DHD Dimensions (with Optional Table Stand)
25.365
41.478
1.709
6.901
4.556
0
6.771
12.677
18.583
0
10.975
30.502
M8 x 1.25
40.418
39.252
4.043










