User manual

Toimintopainikkeet: näillä painikkeilla voidaan asettaa
valitun pesuohjelman lisäksi myös seuraavat toiminnot:
- vedenpehmentimen asetus,
- huuhtelukirkasteen annostelun päälle/poiskytkentä,
- 3/1-toiminnon päälle/poiskytkentä,
- käynnissä olevan ohjelman peruutus.
Ohjelman valintapainikkeet: pesuohjelma valitaan
painamalla yhtä näistä painikkeista.
"Puolitäyttö"-painike: tämä lisätoiminto on hyödyllinen
ja taloudellinen, kun pestäviä astioita on vähän. Se laskee
veden- ja energiankulutusta. Tämä vaihtoehto tulee valita
yhdessä pesuohjelman kanssa.
Vastaava merkkivalo syttyy.
Muista täyttää kumpikin kori (ylä ja ala).
Valittaessa tämä toiminto Tehopesu 70° ja Normaali 65° +
esipesu-ohjelmien esipesuvaihe poistetaan automaattisesti.
(Tässä tapauksessa pesuainetta ei enää tarvita esipesua
varten).
Eco 50° + esipesu-ohjelman pesuvaiheen kesto lyhenee.
Pika 60°- ja Esipesu-ohjelmien kanssa ei voida valita
puolitäyttö-toimintoa (painike poiskytketty - merkkivalo
sammunut).
Vähennä tätä toimintoa käyttäessäsi normaalitäytöllä
käytettävää pesuainemäärää.
Merkkivalot: merkitykset:
Suolan ja huuhtelukirkasteen merkkivalot eivät syty koskaan
pesuohjelman aikana, vaikka suolaa ja huuhtelukirkastetta
tulisi lisätä.
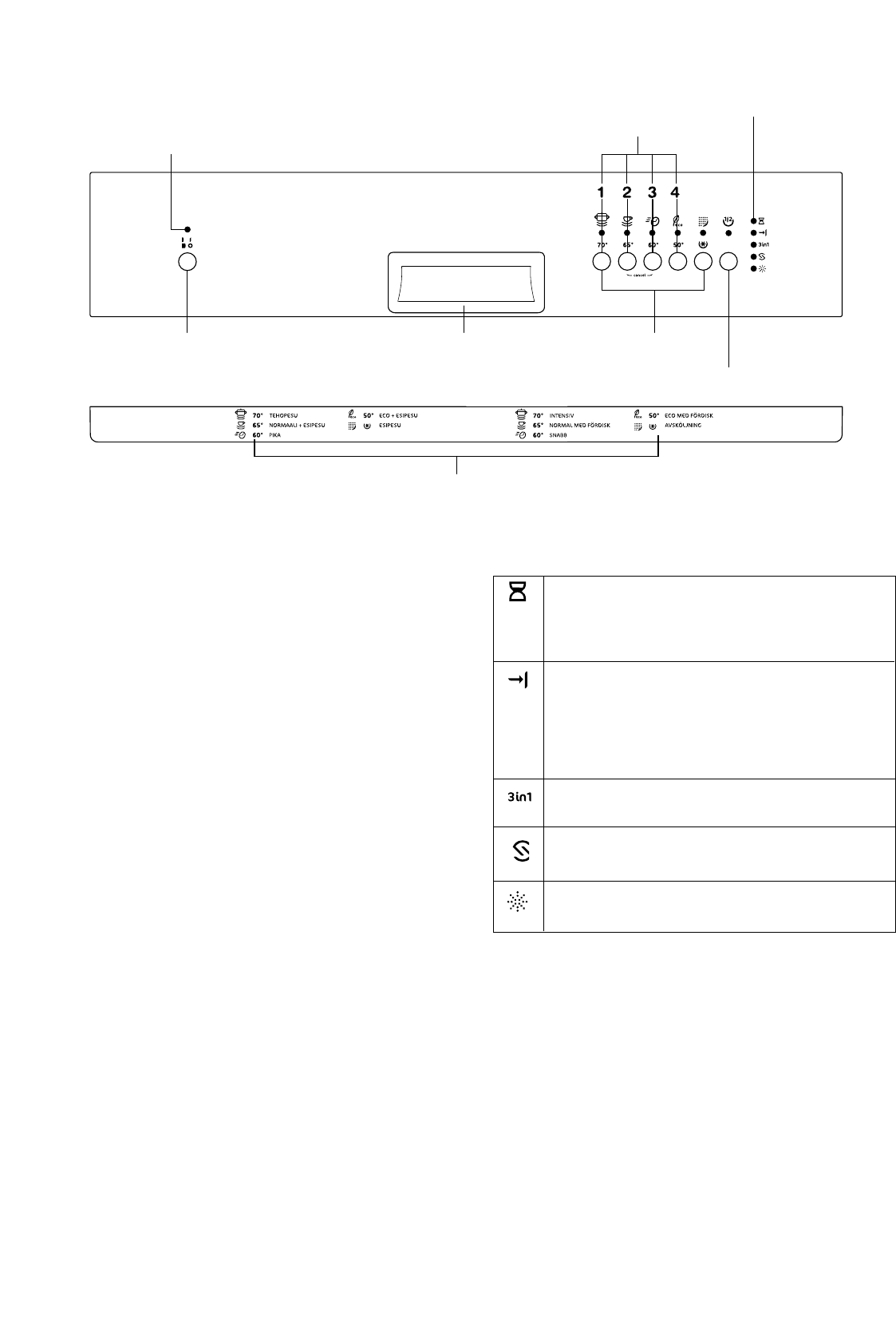
Ohjauspaneeli
5
Toimintopainikkeet
Merkkivalot
Puolitäyttö-painike
Virran merkkivalo
Virtakytkin
Luukun kahva
Pesuohjelmien symbolit
Ohjelman valintapainikket
Ohjelma käynnissä: syttyy, kun pesuohjelma on
asetettu ja jää palamaan pesuohjelman koko keston
ajaksi.
Sammuu, kun pesuohjelma on loppunut.
Ohjelman loppu: syttyy pesuohjelman loputtua.
Se osoittaa myös seuraavia lisätoimintoja:
- vedenpehmentimen asetus,
- huuhtelukirkasteen annostelun päälle/poiskytkentä,
- laitteen toimintahäiriöstä johtuva hälytys.
3/1 -toiminto: osoittaa 3/1 -toiminnan
päälle/poiskytkentää (ks. 3/1 -toiminto).
suolan täytön merkkivalo, syttyy kun suola on
loppunut.
huuhtelukirkasteen täytön merkkivalo, syttyy kun
huuhtelukirkaste on loppunut.










