User manual

10
Rosenlew 818 18 23-02/5
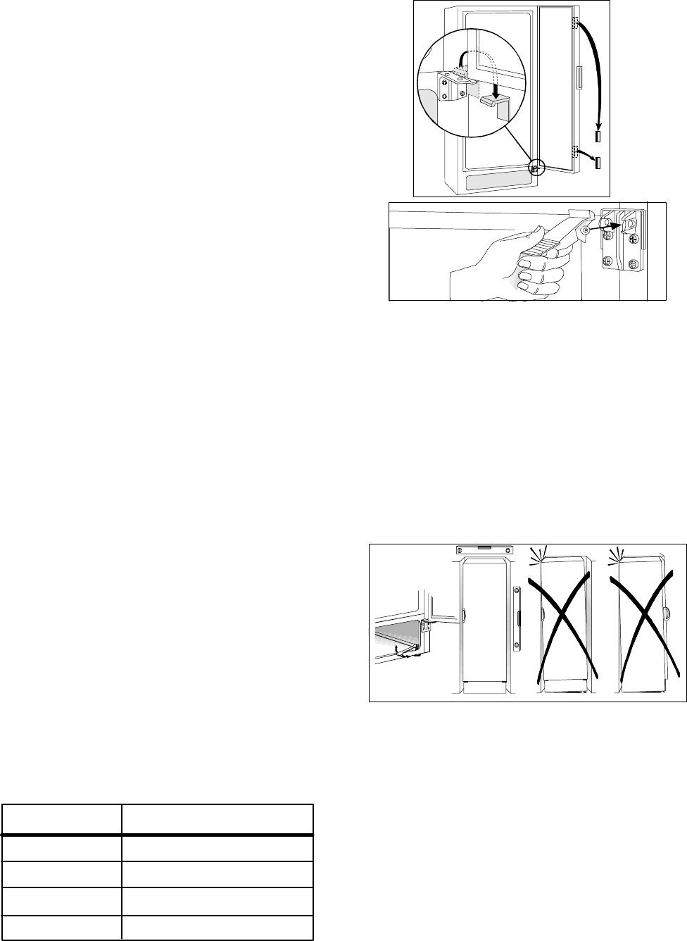
Kuljetustuet
Irrota teipit ja kuljetustuet:
· oven sivuilta
· oven saranoiden sisältä
Eräiden kaappimallien alla on vaimennustyyny. Älä
poista sitä.
Puhdistus ennen käyttöä
Puhdista kaapin sisäosat käyttäen haaleaa vettä,
mietoa astianpesuainetta ja pehmeää pyyhettä.
Polkimen kiinnittäminen
Toimitettaessa kaappiin on asennettu polkimen
kiinnike ja korkokappale. Kiinnitä poljin
työntämällä kiinnikkeeseen.
Sähköliitäntä
Kytke kaappi maadoitettuun pistorasiaan.
Jännite: 230 V.
Sulake: 10 A.
Katso tiedot laitteen arvokilvestä. Kilpi sijaitsee
kaapin sisällä vasemmalla puolella.
Asennus
HUOM! Kaappia paikalleen asennettaessa, suojaa
lattia naarmuttamisen välttämiseksi.
Jotta laite toimisi kunnolla, varmista että:
· kaappi sijoitetaan kuivaan ja viileään paikkaan ja
ettei siihen pääse kohdistumaan suoraa
auringonvaloa.
· kaappi tulee etäälle lämmönlähteistä, kuten esim.
liesi tai astianpesukone.
· kaappi on sijoitettu suoraan ja kaikkien neljän
kulmansa varassa. Kaappi ei saa nojata seinään.
Säädä jalkojen korkeus tarpeen mukaan
toimitukseen kuuluvalla säätöavaimella.
· ilma pääsee kiertämään vapaasti kaapin ympärillä
· kaapin alla ja takana olevat ilmakanavat
eivät peity.
· kaappi sijoitetaan paikkaan jonka ympäristön
lämpötila vastaa ilmastoluokkaa*, jota varten laite
on suunniteltu
* katso arvokilvestä kaapin sisällä.
Allaolevasta taulukosta ilmenee mikä ympäristön
lämpötila kuuluu mihinkin ilmastoluokkaan.
Ilmastoluokka
ympäristön lämpötiloille
+10°C - +32°C
+16°C - +32°C
+18°C - +38°C
+18°C - +43°C
SN
N
ST
T
Mikäli kaappi sijoitetaan nurkkaan siten, että oven
saranapuoli on seinään päin, tulee seinän ja kaapin
väliin jäädä vähintään 10 mm rako. Näin ovi aukeaa
riittävästi, jotta laatikot saadaan vedettyä ulos.
Pistotulppa tulee olla saavutettavissa sen jälkeen kun
kaappi on paikoillaan.










