User manual

• Service på denna produkt får endast utföras av en
auktoriserad serviceverkstad. Endast originaldelar
får användas.
Miljöskydd
Denna produkt innehåller inte, varken i kylkretsen
eller i isolationsmaterialen, någon gas som kan
skada ozonlagret. Produkten får inte kasseras tillsam-
mans med det vanliga hushållsavfallet. Isolationsmate-
rialet innehåller brandfarliga gaser: Produkten skall där-
för kasseras enligt tillämpliga bestämmelser som kan
erhållas från de lokala myndigheterna. Undvik att skada
kylenheten, särskilt på baksidan nära kondensorn. Ma-
terial i denna produkt som är märkta med symbolen
kan återvinnas.
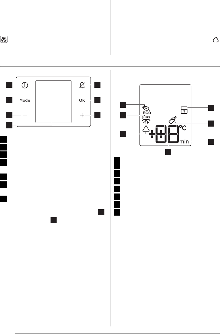
Kontrollpanel
1
7
6
2
3
4
5
1 ON/OFF knapp
2 Larmåterställningsknapp
3 OK knapp
4 Frys temperaturreglage plus (varmare)
Timerreglage
5 Display
6 Frys temperaturreglage minus (kallare)
Timerreglage
7 Mode knapp
Det går att ändra de förinställda knappljuden till att
låta högre genom att samtidigt trycka in MODE
7
-knappen och MINUS
6
-knappen i några sekun-
der. Ljudet kan ändras tillbaka.
Display/kontrollampor
1 Barnlås
2 Drink chill-funktionen
3 Timer
4 Temperaturindikering för frys
5 Larmindikator
6 Fast Freeze-funktionen
7 Eco Mode-funktionen
Slå på
Gör på följande sätt för att slå på produkten:
1. Sätt i stickkontakten i eluttaget.
2. Tryck på ON/OFF-knappen om displayen inte är
tänd.
3. Alarmet kan ljuda efter några sekunder.
För återställning av alarmet, se "Larm vid för hög
temperatur".
4. Temperaturindikatorerna visar den inställda stan-
dardtemperaturen.
Se avsnittet "Temperaturreglering" om du vill välja en
annan temperatur.
Stänga av
Gör på följande sätt för att stänga av produkten:
7
6
5
3
4
1
2
14










