Hardware Reference, Installation and Troubleshooting Owner manual

Install and Wire the Drive
2-17
15
14
13
12
11
10
9
8
7
6
5
4
3
2
1
Customer
Interlock
Fault/Alarm Reset
+ 24 V
Slack Take-up
Motor
Thermostat
+ 24 V
24 V COM
Coast/Stop
+ 24 V
+ 24 V
Section Off
Jog Fwd
Jog Rev
Underwind Enable
24 Analog Out1
27
28
29
30
31
32
Fault
Analog Tachometer
Running
Alarm
18
17
16
5k
Analog Manual Reference
- COM
+ 10 V (Isolated)
+ Diameter Taper Range
or Trim Reference
21
23
19
20
22
+/-
Auto Reference
HI Range
LO Range
Common
COM
K10
Section Run
Under
Over
26 Analog Out2
25 Analog Out Com
3
2
1
Start/Stop by
User Contact
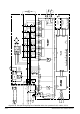
Reference Polarity Over/Under Tachometer Voltage Polarity
Positive Over Positive
DC tachometer voltage polarity should be
based on the polarity of the reference and
the selection of the Over/Under switch.
Positive Under Negative
Negative Over Negative
Negative Under Positive
Figure 2.8b - Sample Regulator Board Terminal Strip Connection Diagram