Manual

Schematics
B-5
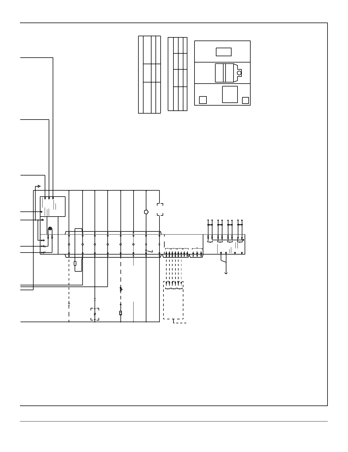
Figure B.5 – 1250A and 1650A Power Modules (Regenerative), Sheet 2
6
P
T
(-) BRIDGE
(+) BRIDGE
M
1
F
A
N
B
A
Y
3
B
A
Y
2
B
A
Y
1
P
C
B
'
S
C
B
1
1
M
P
CONTACTOR PILOT
U
N
I
T
R
A
T
I
N
G
1
2
5
0
1
6
5
0
R
1
(
O
H
M
)
C
(
M
F
D
)
S
C
R
S
N
U
B
B
E
R
N
E
T
W
O
R
K
R
2
(
O
H
M
)
2
3
2
0
2
0
2
0
2
0
1
2
5
0
2
/
S
C
R
Q
T
Y
S
C
R
F
U
S
E
S
(
F
7
-
F
1
2
)
6
3
0
R
A
T
I
N
G
F
U
S
E
U
N
I
T
R
A
T
I
N
G
2
/
S
C
R
8
0
0
1
6
5
0
MOTOR
DRIVEN BY
D
S1
SINE
BRUSHLESS
FIBER OPTIC COMM. LINK
(STATOR)
(STATOR)
RESOLVER
FROM UDC CARD
(
–
)
(
–
)
(
+
)
OUTPUT
COSINE
OUTPUT
S3
S4
S2
6
5
4
PORTS
1
(P4)
0
RAIL
(P5)
COM
COM
PORTS
METE R
±10V
3
4
+
PROCESSOR
B/M O-60000
RCV
XMT
FIBER OPTIC
COMM LINK
ORG
BLU
(P3)
(P2)
R
(C2)
8
2
3
1
(
+
)
(
–
)
SHLD
P
N
J
5
6
7
4
C
F
E
H
COM
COM
(P1)
2
1
+
+
+
±10V
T
R
I
G
G
E
R
ISOLATED
(
C
3
-
P
1
)
I
N
P
U
T
C
O
S
I
N
E
I
N
P
U
T
E
X
T
E
R
N
A
L
S
I
N
E
B
/
M
8
0
5
4
0
0
-
6
R
R
A
C
K
F
A
N
B
/
M
O
-
6
0
0
3
1
(ROTOR)
INDUSTRIAL
DUTY
(
+
)
(
+
)
(
–
)
REFERENCE
INPUT
R1
R2
1
3
2
(IF USED)
R
P
I
G
O
E
S
"
L
O
W
"
O
F
F
-
D
E
L
A
Y
A
F
T
E
R
0
.
5
S
E
C
O
N
D
1
3
2
1
3
AC
A
B
(+)
(–)
S
1
5
P
1
1
M
9
K
1
4
O
U
T
P
U
T
R
E
F
E
R
E
N
C
E
A
U
X
O
U
T
M
C
R
T
R
1
6
A
U
X
I
N
5
A
U
X
I
N
4
N
1
2
L
1
0
7
H
5
E
3
C
1
(
C
3
)
A
A
U
X
I
N
3
A
U
X
I
N
2
J
8
F
6
A
U
X
I
N
1
(
C
3
-
P
2
)
R
P
I
D
4
2
B
D
R
I
V
E
I
/
O
P
O
W
E
R
S
U
P
P
L
Y
B
/
M
O
-
6
0
0
0
7
(
C
1
)
V
A
C
1
1
5
L
1
L
1
G
N
D
L
2
F
A
N
L
2
R
A
C
K
FWD
& FDBK
FLD GATES
DC ARM
AC LINE &
(P1)
(P3)
(P4)
REV
(P2)
DC POWER TECH
B/M O-60002
(C4)
ARM GATES
4
.
7
K
Ω
6
.
5
W
ESR
EMERGENCY STOP
LINE
MOTOR THERMOSTAT
(IF USED)
EXTERNAL DEVICE
GROUND FAULT
DOOR INTERLOCK
M
O
T
O
R
T
H
E
R
M
O
S
T
A
T
C
O
N
T
A
C
T
O
R
F
E
E
D
B
A
C
K
G
R
O
U
N
D
F
A
U
L
T
(
I
F
U
S
E
D
)
H
E
A
T
S
I
N
K
T
H
E
R
M
O
S
T
A
T
(IF USED)
EXTERNAL DEVICE
TWISTED
TWISTED
TWISTED
METERS ARE 10 VOLT
DC MOVEMENTS
1
.
0
A
2
5
0
V
T
F
U
B
/
M
8
0
5
4
0
1
-
1
S
8
4
P
E
4
1
3
4
4
5
P
E
7
P
O
W
E
R
M
O
D
U
L
E
TB6
TWISTED
OPTIONAL METERS
TB5
TB4
TB4
SIGNALS
(FAIL SAFE)
=(±2047)
(+)
(–)
(+)
(–)
(+)
(–)
1
1
2
3
4
5
6
7
8