Manual

2-18
SD3100 Power Modules
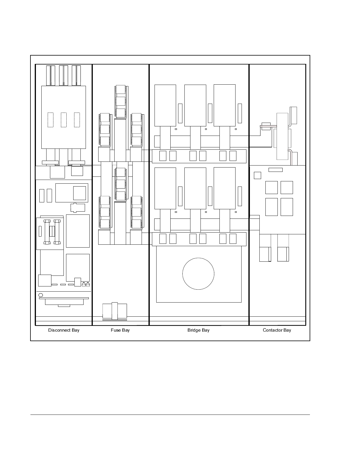
2.5.1 3000A Power Module Component Layout
Figure 2.9 – 3000A Power Module Component Layout
FAN1
A2(-) A1(+)
M1
A14R
A11F
A16R
A13F
A15F
A12F
A15R
A16F
A13R
A14F
A11R
PT2
F7
F9
F8
F10
F12
F11
A12R
PP6PP5PP4
S1A S2A
S3A
PP3PP2PP1
S1
S2
S3
ACT3ACT1
F1, F2,
F3
SP1
SP2
SP3
SP4
R1
MP
F17
F18
F19
F27
F28
F29
M11 M12
L1A L2A L3A
F51
*
F52*
F53*
CB11*
or
∗
∗
∗
∗
FU-A
FU-B
SCALING
UNIT
TB1
PMI
RACK
PGA
RACK
FIELD
SUPPLY
TB2
TB6
TB3
TB4
TB5
FWD
REV
FAN2-C1
FAN2
F14 F15
F16
F14
F15